推奨利用人数
40人以上
茅場町イーストスクエア 6階
- 所在地:東京都中央区新川1丁目22番11号
- 交通:東京メトロ日比谷線「茅場町」駅徒歩6分
- 交通2:JR京葉線「八丁堀」駅徒歩9分
- 交通3:東京メトロ半蔵門線「水天宮前」駅徒歩10分
| 賃料:相談 (税別) | 管理費:相談 (税別) |
| 敷金:7ヶ月- | 礼金:0ヶ月 |
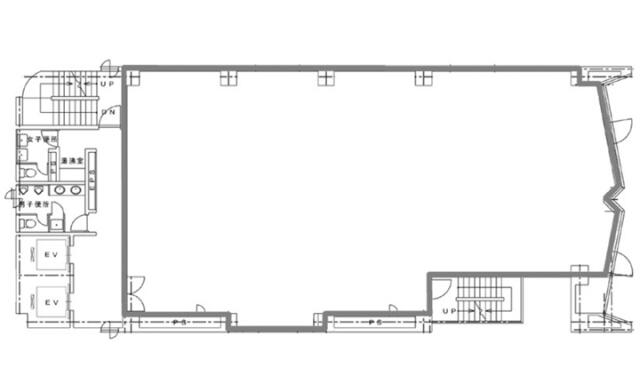
| 面積:287.77m² | 所在階:地上6階 |
| 間取り:事務所 | 築年月:1989年10月 |
| 賃料/管理費 | 相談 (税別)/相談 (税別) | フリーレント | 6ヶ月 |
|---|---|---|---|
| 敷金/礼金 | 7ヶ月/0ヶ月 | 内見・入居 | 相談 |
| 間取り | 事務所 | 面積 | 287.77m² |
| 所在階 | 地上6階 | 最大スペース | |
| 住所 | 東京都中央区新川1丁目22番11号 | 最寄駅 | 東京メトロ日比谷線「茅場町」駅徒歩6分 JR京葉線「八丁堀」駅徒歩9分 東京メトロ半蔵門線「水天宮前」駅徒歩10分 |
| その他交通 | 築年月 | 1989年10月 | |
| 方角 | 構造 | 鉄骨鉄筋コンクリート造(SRC造) 9階建 | |
| 契約期間 | 2年間 | 契約形態 | 普通借家 |
| 償却 | 0ヶ月 | 設備 | エレベーター , OAフロア |
| 更新料 | 1ヶ月 | 更新日 | 2025年09月11日 |
| 備考 | ・6階:セットアップオフィス | ||



お問い合わせの際は、「部屋No.46452」とお伝えください。





























ガラスカーテンウォールの存在感のある外観の建物です。1989年竣工で新耐震基準をクリアしています。
エントランスは間接照明で明るく清潔感のある佇まいです。貸室内には落ち着きのある石張の受付と、ガラスパーテーションの明るい会議室があらかじめ設置してありますので、すぐに業務を開始していただけます。
トイレや給湯室も一新、気持ちよくお使いいただけます。機械警備完備でセキュリティ面も安心です。