推奨利用人数
40人以上
【成約済み】日工薬会館ビル 3階
- 所在地:東京都中央区日本橋横山町3番13号
- 交通:都営新宿線「馬喰横山」駅徒歩1分
- 交通2:都営浅草線「東日本橋」駅徒歩4分
- 交通3:東京メトロ日比谷線「小伝馬町」駅徒歩5分
| 賃料:-- (税別) | 管理費:80,010円 (税別) |
| 敷金:6ヶ月- | 礼金:0ヶ月 |
| 面積:264.5m² | 所在階:地上3階 |
| 間取り:事務所 | 築年月:1965年01月 |
| 賃料/管理費 | -- (税別)/80,010円 (税別) | フリーレント | 0ヶ月 |
|---|---|---|---|
| 敷金/礼金 | 6ヶ月/0ヶ月 | 内見・入居 | 内見可 |
| 間取り | 事務所 | 面積 | 264.5m² |
| 所在階 | 地上3階 | 最大スペース | |
| 住所 | 東京都中央区日本橋横山町3番13号 | 最寄駅 | 都営新宿線「馬喰横山」駅徒歩1分 都営浅草線「東日本橋」駅徒歩4分 東京メトロ日比谷線「小伝馬町」駅徒歩5分 |
| その他交通 | 築年月 | 1965年01月 | |
| 方角 | 構造 | 鉄筋コンクリート造(RC造) 6階建 | |
| 契約期間 | 2年間 | 契約形態 | 定期借家 |
| 償却 | 2ヶ月 | 設備 | エレベーター |
| 更新料 | 0ヶ月 | 更新日 | 2025年09月11日 |
| 備考 | ・エントランス開閉時間:平日9:00~17:00 ※※左記時間帯以外も開錠可能 | ||



お問い合わせの際は、「部屋No.46455」とお伝えください。





























1965年竣工、茶系の外壁が落ち着いた印象の建物です。
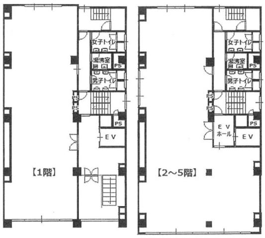
基準となるフロアは1フロア約80坪。EV1基、1フロア1テナント利用のオフィスです。
男女別トイレが室外にありますので室内は効率よくレイアウト可能です。
「馬喰横山」駅はJR総武線快速「馬喰町」駅や都営浅草線「東日本橋」駅に地下通路でつながっています。周辺はオフィス街、飲食店も多く便利な立地です。