推奨利用人数
15人~19人
【成約済み】COAST芝浦 5階
- 所在地:東京都港区芝浦2丁目14番6号
- 交通:JR山手線「田町」駅徒歩8分
- 交通2:都営浅草線「三田」駅徒歩10分
- 交通3:ゆりかもめ「芝浦ふ頭」駅徒歩10分
| 賃料:-- (税別) | 管理費:0円 (税別) |
| 敷金:6ヶ月- | 礼金:0ヶ月 |
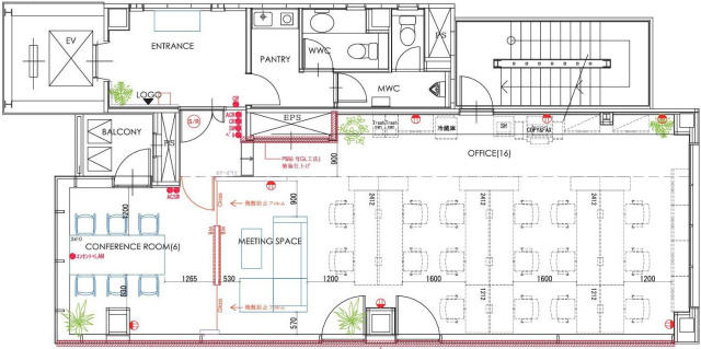
| 面積:108.64m² | 所在階:地上5階 |
| 間取り:事務所 | 築年月:1992年01月 |
| 賃料/管理費 | -- (税別)/0円 (税別) | フリーレント | 0ヶ月 |
|---|---|---|---|
| 敷金/礼金 | 6ヶ月/0ヶ月 | 内見・入居 | 時期2月下旬 (2021年2月22日入居可予定) |
| 間取り | 事務所 | 面積 | 108.64m² |
| 所在階 | 地上5階 | 最大スペース | |
| 住所 | 東京都港区芝浦2丁目14番6号 | 最寄駅 | JR山手線「田町」駅徒歩8分 都営浅草線「三田」駅徒歩10分 ゆりかもめ「芝浦ふ頭」駅徒歩10分 |
| その他交通 | 築年月 | 1992年01月 | |
| 方角 | 構造 | 鉄骨構造(S造) 6階建 | |
| 契約期間 | 2年間 | 契約形態 | 普通借家 |
| 償却 | 0ヶ月 | 設備 | エレベーター , OAフロア |
| 更新料 | 0ヶ月 | 更新日 | 2025年09月11日 |
| 備考 | |||



お問い合わせの際は、「部屋No.46464」とお伝えください。





























グレーを基調とした外壁、2面に渡って全面ガラス張りの外観がスタイリッシュな印象の建物です。
2018年1月、大規模リニューアル工事完了!2階~6階は予め会議室を設置!内装工事等不要ですぐにお使いいただけます!