推奨利用人数
40人以上
【成約済み】MEGURO VILLA GARDEN(旧称:昭和地所目黒ビル) 7階
- 所在地:東京都品川区上大崎3丁目5番11号
- 交通:JR山手線「目黒」駅徒歩5分
- 交通2:東京メトロ南北線「白金台」駅徒歩9分
- 交通3:東急池上線「五反田」駅徒歩15分
| 賃料:-- (税別) | 管理費:282,048円 (税別) |
| 敷金:12ヶ月- | 礼金:0ヶ月 |
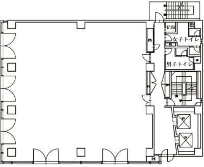
| 面積:310.81m² | 所在階:地上7階 |
| 間取り:事務所 | 築年月:1992年01月 |
| 賃料/管理費 | -- (税別)/282,048円 (税別) | フリーレント | 0ヶ月 |
|---|---|---|---|
| 敷金/礼金 | 12ヶ月/0ヶ月 | 内見・入居 | 内見可 |
| 間取り | 事務所 | 面積 | 310.81m² |
| 所在階 | 地上7階 | 最大スペース | |
| 住所 | 東京都品川区上大崎3丁目5番11号 | 最寄駅 | JR山手線「目黒」駅徒歩5分 東京メトロ南北線「白金台」駅徒歩9分 東急池上線「五反田」駅徒歩15分 |
| その他交通 | 築年月 | 1992年01月 | |
| 方角 | 構造 | 鉄骨鉄筋コンクリート造(SRC造) 8階建 | |
| 契約期間 | 2年間 | 契約形態 | |
| 償却 | 0ヶ月 | 設備 | エレベーター , OAフロア |
| 更新料 | 0ヶ月 | 更新日 | 2025年09月11日 |
| 備考 |
・エントランス開閉時間:平日7:30~20:00 土日祝 閉 ※上記時間帯以外はセキュリティカード利用により24時間入退館可能 |
||



お問い合わせの際は、「部屋No.46470」とお伝えください。





























目黒駅徒歩5分の好立地オフィスです!外苑西通りに面していて視認性も良好です。2018年2月にエントランスやトイレなど共用部や貸室をリニューアルし、新しくおしゃれなオフィスへ生まれ変わりました!
EV2基設置、各階室外にに男女別トイレと給湯室がフロア専用で設けられていますので室内は効率よくレイアウトが可能です。
3階~5階には、開放的なオープンテラスがあり、リフレッシュに最適です!