推奨利用人数
5人~6人
【成約済み】ザパークハビオ根岸三丁目 803号室
- 所在地:東京都台東区根岸3丁目13番7号
- 交通:東京メトロ日比谷線「入谷」駅徒歩5分
- 交通2:JR山手線「鶯谷」駅徒歩7分
- 交通3:―
| 賃料:-- | 管理費:15,000円 |
| 敷金:2ヶ月- | 礼金:1ヶ月 |
| 面積:40.15m² | 所在階:地上8階 |
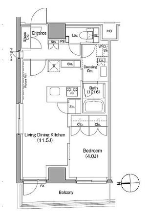
| 間取り:1LDK | 築年月:2017年07月 |
| 賃料/管理費 | --/15,000円 | フリーレント | 0ヶ月 |
|---|---|---|---|
| 敷金/礼金 | 2ヶ月/1ヶ月 | 内見・入居 | 内見可 |
| 間取り | 1LDK | 面積 | 40.15m² |
| 所在階 | 地上8階 | 最大スペース | |
| 住所 | 東京都台東区根岸3丁目13番7号 | 最寄駅 | 東京メトロ日比谷線「入谷」駅徒歩5分 JR山手線「鶯谷」駅徒歩7分 ― |
| その他交通 | 築年月 | 2017年07月 | |
| 方角 | 構造 | 鉄筋コンクリート造(RC造) 8階建 | |
| 契約期間 | 2年間 | 契約形態 | 普通借家 |
| 償却 | 0ヶ月 | 設備 | エレベーター |
| 更新料 | 1ヶ月 | 更新日 | 2025年09月11日 |
| 備考 | |||
| その他費用 | ・駐車場:45,000円(税別) ・駐輪場:300円(税別) ・バイク置き場:5,000円(税別) |
||



お問い合わせの際は、「部屋No.46478」とお伝えください。





























周辺は落ち着いた環境です。
駐車場、駐輪場、バイク置き場完備
オートロック、カラーモニター付きインターホンや外構・共用部・エレベーター内などに防犯カメラを設置しており、セキュリティ面も安心です。
宅配ボックスがあるので、荷物の受け取りにも便利です。
ペット飼育、楽器演奏の相談もできます。(諸条件要確認)