推奨利用人数
7人~8人
【成約済み】九段鶴屋ビル 5階
- 所在地:東京都千代田区九段南2丁目5番10号
- 交通:東京メトロ半蔵門線「九段下」駅徒歩7分
- 交通2:JR中央・総武線「市ケ谷」駅徒歩10分
- 交通3:東京メトロ半蔵門線「半蔵門」駅徒歩9分
| 賃料:-- (税別) | 管理費:0円 (税別) |
| 敷金:6ヶ月- | 礼金:0ヶ月 |
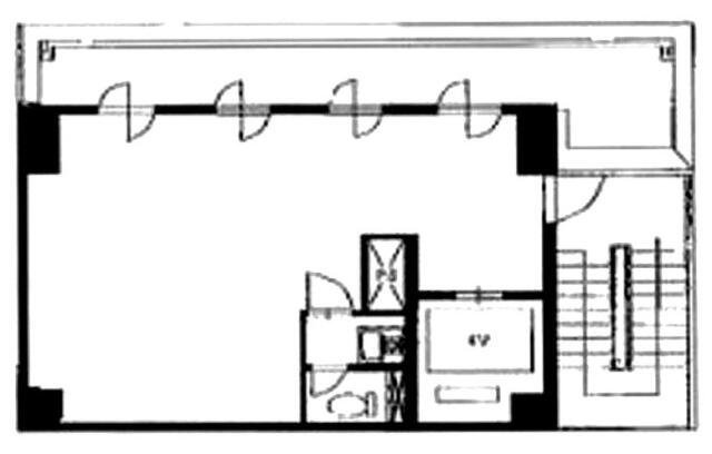
| 面積:43.67m² | 所在階:地上5階 |
| 間取り:事務所 | 築年月:1991年03月 |
| 賃料/管理費 | -- (税別)/0円 (税別) | フリーレント | 0ヶ月 |
|---|---|---|---|
| 敷金/礼金 | 6ヶ月/0ヶ月 | 内見・入居 | 内見可 |
| 間取り | 事務所 | 面積 | 43.67m² |
| 所在階 | 地上5階 | 最大スペース | |
| 住所 | 東京都千代田区九段南2丁目5番10号 | 最寄駅 | 東京メトロ半蔵門線「九段下」駅徒歩7分 JR中央・総武線「市ケ谷」駅徒歩10分 東京メトロ半蔵門線「半蔵門」駅徒歩9分 |
| その他交通 | 築年月 | 1991年03月 | |
| 方角 | 構造 | 鉄筋コンクリート造(RC造) 5階建 | |
| 契約期間 | 2年間 | 契約形態 | 普通借家 |
| 償却 | 0ヶ月 | 設備 | エレベーター , OAフロア |
| 更新料 | 1ヶ月 | 更新日 | 2025年09月11日 |
| 備考 | |||



お問い合わせの際は、「部屋No.46536」とお伝えください。





























1991年竣工、グレーのタイル張りの外観の建物です。新耐震基準をクリアしています。
基準となるフロアは1フロア約27坪。EV1基、1フロア1テナント利用のオフィスです。
室内には専用のトイレと給湯室があり使い勝手も良好です。セキュリティは機械警備を導入していますので安心です。
靖国通りから1本入った場所に立地。周辺にはコンビニや飲食店などもありますのでランチにも便利です。