推奨利用人数
11人~12人
【成約済み】栗原ビル(湯島) 2階
- 所在地:東京都文京区湯島1丁目10番9号
- 交通:JR中央・総武線「御茶ノ水」駅徒歩4分
- 交通2:東京メトロ銀座線「末広町」駅徒歩6分
- 交通3:JR山手線「秋葉原」駅徒歩10分
| 賃料:-- (税別) | 管理費:15,000円 (税別) |
| 敷金:相談- | 礼金:0ヶ月 |
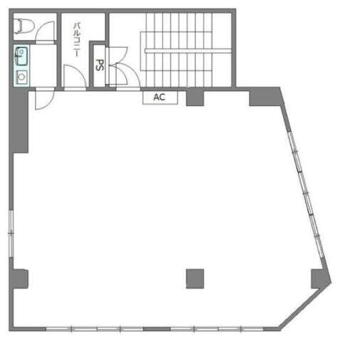
| 面積:74.45m² | 所在階:地上2階 |
| 間取り:事務所 | 築年月:1983年08月 |
| 賃料/管理費 | -- (税別)/15,000円 (税別) | フリーレント | 0ヶ月 |
|---|---|---|---|
| 敷金/礼金 | 相談/0ヶ月 | 内見・入居 | 内見可 |
| 間取り | 事務所 | 面積 | 74.45m² |
| 所在階 | 地上2階 | 最大スペース | |
| 住所 | 東京都文京区湯島1丁目10番9号 | 最寄駅 | JR中央・総武線「御茶ノ水」駅徒歩4分 東京メトロ銀座線「末広町」駅徒歩6分 JR山手線「秋葉原」駅徒歩10分 |
| その他交通 | 東京メトロ千代田線「湯島」駅10分 | 築年月 | 1983年08月 |
| 方角 | 構造 | 鉄筋コンクリート造(RC造) 5階建 | |
| 契約期間 | 2年間 | 契約形態 | 普通借家 |
| 償却 | 0ヶ月 | 設備 | |
| 更新料 | 1ヶ月 | 更新日 | 2025年09月11日 |
| 備考 | ・エレベーターはありません | ||
| その他費用 | ・駐車場:50,000円/月(税別) | ||



お問い合わせの際は、「部屋No.46603」とお伝えください。





























複数路線利用可能で交通アクセス良好
蔵前橋通りから少し入った場所にあり、落ち着いた環境
角地にあり二面採光なので明るいです
1フロア1テナント
個別空調
光ケーブル引込可
24時間使用可