推奨利用人数
9人~10人
【成約済み】第3電波ビル 5階
- 所在地:東京都千代田区外神田1丁目8番2号
- 交通:JR山手線「秋葉原」駅徒歩4分
- 交通2:東京メトロ銀座線「末広町」駅徒歩6分
- 交通3:JR中央・総武線「御茶ノ水」駅徒歩7分
| 賃料:-- (税別) | 管理費:53,940円 (税別) |
| 敷金:10ヶ月- | 礼金:0ヶ月 |
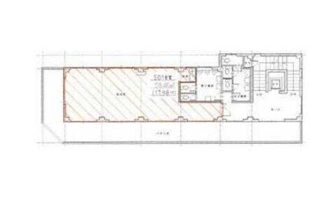
| 面積:59.46m² | 所在階:地上5階 |
| 間取り:事務所 | 築年月:1959年02月 |
| 賃料/管理費 | -- (税別)/53,940円 (税別) | フリーレント | 0ヶ月 |
|---|---|---|---|
| 敷金/礼金 | 10ヶ月/0ヶ月 | 内見・入居 | 相談 |
| 間取り | 事務所 | 面積 | 59.46m² |
| 所在階 | 地上5階 | 最大スペース | |
| 住所 | 東京都千代田区外神田1丁目8番2号 | 最寄駅 | JR山手線「秋葉原」駅徒歩4分 東京メトロ銀座線「末広町」駅徒歩6分 JR中央・総武線「御茶ノ水」駅徒歩7分 |
| その他交通 | 築年月 | 1959年02月 | |
| 方角 | 構造 | 鉄筋コンクリート造(RC造) 5階建 | |
| 契約期間 | 2年間 | 契約形態 | 普通借家 |
| 償却 | 0ヶ月 | 設備 | エレベーター , OAフロア |
| 更新料 | 0ヶ月 | 更新日 | 2025年09月11日 |
| 備考 | |||
| その他費用 | ・機械警備料:15,000円 | ||



お問い合わせの際は、「部屋No.46637」とお伝えください。





























1959年竣工の歴史のある建物です。外壁やエントランスはしっかりとリニューアル工事されていますので築年数を感じさせません。
基準となるフロアは1フロア約40坪。EV1基、募集時期やフロアにより分割区画がございます。
共用部に男女別のトイレがありますので、貸室内は効率よくレイアウト可能です。セキュリティは機械警備を導入しています。
秋葉原電気街口から徒歩3分の好立地!周辺には飲食店も多くランチ環境も充実しています。