推奨利用人数
15人~19人
【成約済み】偕楽ビル(新御徒町) 7階
- 所在地:東京都台東区台東4丁目16番8号
- 交通:都営大江戸線「新御徒町」駅徒歩3分
- 交通2:東京メトロ日比谷線「仲御徒町」駅徒歩5分
- 交通3:JR山手線「御徒町」駅徒歩7分
| 賃料:-- (税別) | 管理費:75,250円 (税別) |
| 敷金:10ヶ月- | 礼金:0ヶ月 |
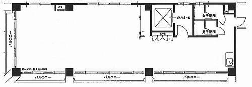
| 面積:99.5m² | 所在階:地上7階 |
| 間取り:事務所 | 築年月:1987年03月 |
| 賃料/管理費 | -- (税別)/75,250円 (税別) | フリーレント | 0ヶ月 |
|---|---|---|---|
| 敷金/礼金 | 10ヶ月/0ヶ月 | 内見・入居 | 相談 |
| 間取り | 事務所 | 面積 | 99.5m² |
| 所在階 | 地上7階 | 最大スペース | |
| 住所 | 東京都台東区台東4丁目16番8号 | 最寄駅 | 都営大江戸線「新御徒町」駅徒歩3分 東京メトロ日比谷線「仲御徒町」駅徒歩5分 JR山手線「御徒町」駅徒歩7分 |
| その他交通 | 東京メトロ銀座線「上野広小路」駅9分 | 築年月 | 1987年03月 |
| 方角 | 構造 | 鉄骨鉄筋コンクリート造(SRC造) 7階建 | |
| 契約期間 | 2年間 | 契約形態 | |
| 償却 | 10% | 設備 | エレベーター , OAフロア |
| 更新料 | 1ヶ月 | 更新日 | 2025年09月11日 |
| 備考 |
看板使用料:月額20,000円 看板保証金:50,000円 |
||



お問い合わせの際は、「部屋No.46639」とお伝えください。





























OAフロアの新耐震基準ビルで安心です。
1フロア1テナントでトイレは男女別に分かれているので気兼ねなく利用できます。