推奨利用人数
25人~29人
【成約済み】第一三須ビル 4階
- 所在地:東京都港区西新橋2丁目34番7号
- 交通:都営三田線「内幸町」駅徒歩7分
- 交通2:東京メトロ銀座線「虎ノ門」駅徒歩8分
- 交通3:東京メトロ日比谷線「神谷町」駅徒歩8分
| 賃料:-- (税別) | 管理費:157,290円 (税別) |
| 敷金:8ヶ月- | 礼金:0ヶ月 |
| 面積:173.32m² | 所在階:地上4階 |
| 間取り:事務所 | 築年月:1981年01月 |
| 賃料/管理費 | -- (税別)/157,290円 (税別) | フリーレント | 0ヶ月 |
|---|---|---|---|
| 敷金/礼金 | 8ヶ月/0ヶ月 | 内見・入居 | |
| 間取り | 事務所 | 面積 | 173.32m² |
| 所在階 | 地上4階 | 最大スペース | |
| 住所 | 東京都港区西新橋2丁目34番7号 | 最寄駅 | 都営三田線「内幸町」駅徒歩7分 東京メトロ銀座線「虎ノ門」駅徒歩8分 東京メトロ日比谷線「神谷町」駅徒歩8分 |
| その他交通 | JR山手線「新橋」駅11分 | 築年月 | 1981年01月 |
| 方角 | 構造 | 鉄骨鉄筋コンクリート造(SRC造) 9階建 | |
| 契約期間 | 2年間 | 契約形態 | 普通借家 |
| 償却 | 3ヶ月 | 設備 | エレベーター |
| 更新料 | 0ヶ月 | 更新日 | 2025年09月11日 |
| 備考 | |||



お問い合わせの際は、「部屋No.46680」とお伝えください。





























複数路線利用可能で交通アクセス良好
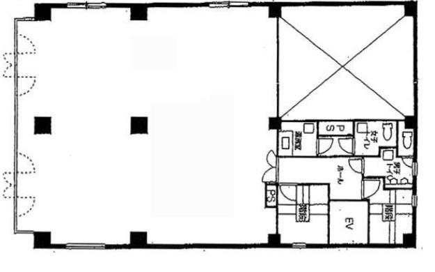
正方形に近い使いやすい間取りです
1フロア1テナント
個別空調
機械警備
光ファイバー
24時間利用可
共用部男女別トイレ
立体駐車場を併設しています