推奨利用人数
15人~19人
LEO八重洲ビル 5階
- 所在地:東京都中央区京橋1丁目1番9号
- 交通:東京メトロ銀座線「京橋」駅徒歩2分
- 交通2:東京メトロ東西線「日本橋」駅徒歩3分
- 交通3:JR山手線「東京」駅徒歩4分
| 賃料:727,440円 (税別) | 管理費:0円 (税別) |
| 敷金:8ヶ月- | 礼金:0ヶ月 |
| 面積:100.2m² | 所在階:地上5階 |
| 間取り:事務所 | 築年月:1981年10月 |
| 賃料/管理費 | 727,440円 (税別)/0円 (税別) | フリーレント | 0ヶ月 |
|---|---|---|---|
| 敷金/礼金 | 8ヶ月/0ヶ月 | 内見・入居 | 相談 |
| 間取り | 事務所 | 面積 | 100.2m² |
| 所在階 | 地上5階 | 最大スペース | |
| 住所 | 東京都中央区京橋1丁目1番9号 | 最寄駅 | 東京メトロ銀座線「京橋」駅徒歩2分 東京メトロ東西線「日本橋」駅徒歩3分 JR山手線「東京」駅徒歩4分 |
| その他交通 | 築年月 | 1981年10月 | |
| 方角 | 構造 | 鉄骨鉄筋コンクリート造(SRC造) 9階建 | |
| 契約期間 | 2年間 | 契約形態 | 普通借家 |
| 償却 | 1ヶ月 | 設備 | エレベーター , OAフロア |
| 更新料 | 1ヶ月 | 更新日 | 2025年09月11日 |
| 備考 | |||



お問い合わせの際は、「部屋No.46732」とお伝えください。





























中央通り沿い、東京駅まで傘いらずの立地です。
1981年竣工、赤茶色の石張りの外観の建物です。
周辺はオフィス街、中央通り沿いで人通りの多いにぎやかなエリアです。
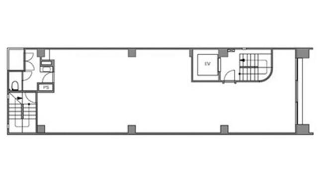
基準となるフロアは1フロア約30坪。1フロア1テナント利用、室内に専用のトイレと水回りがあります。
最寄りの駅は京橋駅、東京駅、日本橋駅も徒歩5分以内で利用できるアクセスのよいオフィスです。