推奨利用人数
11人~12人
【成約済み】永田ビル(日本橋) 4階
- 所在地:東京都中央区日本橋1丁目17番4号
- 交通:都営浅草線「日本橋」駅徒歩2分
- 交通2:東京メトロ東西線「茅場町」駅徒歩3分
- 交通3:JR山手線「東京」駅徒歩10分
| 賃料:-- (税別) | 管理費:0円 (税別) |
| 敷金:6ヶ月- | 礼金:0ヶ月 |
| 面積:69.55m² | 所在階:地上4階 |
| 間取り:事務所 | 築年月:1963年05月 |
| 賃料/管理費 | -- (税別)/0円 (税別) | フリーレント | 0ヶ月 |
|---|---|---|---|
| 敷金/礼金 | 6ヶ月/0ヶ月 | 内見・入居 | 内見可 |
| 間取り | 事務所 | 面積 | 69.55m² |
| 所在階 | 地上4階 | 最大スペース | |
| 住所 | 東京都中央区日本橋1丁目17番4号 | 最寄駅 | 都営浅草線「日本橋」駅徒歩2分 東京メトロ東西線「茅場町」駅徒歩3分 JR山手線「東京」駅徒歩10分 |
| その他交通 | 築年月 | 1963年05月 | |
| 方角 | 構造 | 鉄筋コンクリート造(RC造) 6階建 | |
| 契約期間 | 応相談 | 契約形態 | 定期借家 |
| 償却 | 0ヶ月 | 設備 | エレベーター |
| 更新料 | 0ヶ月 | 更新日 | 2025年09月11日 |
| 備考 | |||



お問い合わせの際は、「部屋No.46760」とお伝えください。





























1963年竣工の歴史のある建物です。1998年にリニューアルを実施しています。
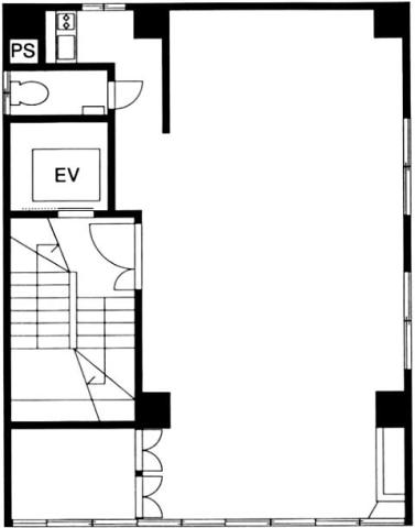
基準となるフロアは1フロア約21坪、EV1基、1フロア1テナント利用、室内に専用のトイレと給湯室がありますので使い勝手も良好です。
昭和通りから少し入った場所に立地しており、周辺は比較的落ち着いたオフィス街。
すぐそばに東京証券取引所がありますので、証券会社や銀行など金融系の会社が多いエリアです。
カフェや飲食店、コンビニ、郵便局もありオフィスとして便利な施設が揃った好立地です。