推奨利用人数
7人~8人
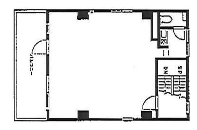
【成約済み】新槇町別館第一 6階
- 所在地:東京都中央区日本橋3丁目2番14号
- 交通:東京メトロ銀座線「日本橋」駅徒歩3分
- 交通2:JR山手線「東京」駅徒歩4分
- 交通3:都営浅草線「宝町」駅徒歩10分
| 賃料:-- (税別) | 管理費:30,780円 (税別) |
| 敷金:6ヶ月- | 礼金:0ヶ月 |
| 面積:50.88m² | 所在階:地上6階 |
| 間取り:事務所 | 築年月:1971年03月 |
| 賃料/管理費 | -- (税別)/30,780円 (税別) | フリーレント | 0ヶ月 |
|---|---|---|---|
| 敷金/礼金 | 6ヶ月/0ヶ月 | 内見・入居 | 相談 |
| 間取り | 事務所 | 面積 | 50.88m² |
| 所在階 | 地上6階 | 最大スペース | |
| 住所 | 東京都中央区日本橋3丁目2番14号 | 最寄駅 | 東京メトロ銀座線「日本橋」駅徒歩3分 JR山手線「東京」駅徒歩4分 都営浅草線「宝町」駅徒歩10分 |
| その他交通 | 築年月 | 1971年03月 | |
| 方角 | 構造 | 鉄筋コンクリート造(RC造) 6階建 | |
| 契約期間 | 2年間 | 契約形態 | 普通借家 |
| 償却 | 1ヶ月 | 設備 | エレベーター |
| 更新料 | 1ヶ月 | 更新日 | 2025年09月11日 |
| 備考 | |||



お問い合わせの際は、「部屋No.46761」とお伝えください。





























複数路線利用可能で交通アクセス良好
東京駅八重洲口至近の貸事務所
1フロア1テナント
個別空調
光ケーブル引込可
機械警備(ICカード)対応でセキュリティ面も安心です