推奨利用人数
15人~19人
【成約済み】京橋北見ビル西館 6階
- 所在地:東京都中央区八丁堀3丁目1番9号
- 交通:都営浅草線「宝町」駅徒歩2分
- 交通2:東京メトロ日比谷線「八丁堀」駅徒歩5分
- 交通3:東京メトロ銀座線「京橋」駅徒歩5分
| 賃料:-- (税別) | 管理費:123,956円 (税別) |
| 敷金:10ヶ月- | 礼金:0ヶ月 |
| 面積:107.83m² | 所在階:地上6階 |
| 間取り:事務所 | 築年月:1988年02月 |
| 賃料/管理費 | -- (税別)/123,956円 (税別) | フリーレント | 0ヶ月 |
|---|---|---|---|
| 敷金/礼金 | 10ヶ月/0ヶ月 | 内見・入居 | 内見可 |
| 間取り | 事務所 | 面積 | 107.83m² |
| 所在階 | 地上6階 | 最大スペース | |
| 住所 | 東京都中央区八丁堀3丁目1番9号 | 最寄駅 | 都営浅草線「宝町」駅徒歩2分 東京メトロ日比谷線「八丁堀」駅徒歩5分 東京メトロ銀座線「京橋」駅徒歩5分 |
| その他交通 | 築年月 | 1988年02月 | |
| 方角 | 構造 | 鉄骨鉄筋コンクリート造(SRC造) 7階建 | |
| 契約期間 | 2年間 | 契約形態 | 普通借家 |
| 償却 | 10% | 設備 | エレベーター , OAフロア |
| 更新料 | 1ヶ月 | 更新日 | 2025年09月11日 |
| 備考 | |||



お問い合わせの際は、「部屋No.46775」とお伝えください。





























1988年竣工、落ち着いたブラウンの石張りの外観の建物です。グレード感のあるエントランスが好印象です。
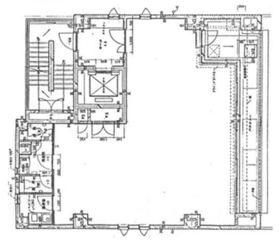
基準となるフロアは1フロア約50坪。EV1基、1フロア1テナント利用のオフィスです。
室内には男女別のトイレと給湯室があり使い勝手も良好。個別空調、OAフロア、機械警備など設備も充実しています。
宝町駅のほか、八丁堀駅や京橋駅も利用可能で複数路線利用でき交通アクセス良好!