推奨利用人数
40人以上
【成約済み】田辺浜町ビル 2階
- 所在地:東京都中央区日本橋浜町2丁目1番1号
- 交通:東京メトロ半蔵門線「水天宮前」駅徒歩4分
- 交通2:都営新宿線「浜町」駅徒歩5分
- 交通3:都営浅草線「人形町」駅徒歩8分
| 賃料:相談 (税別) | 管理費:相談 (税別) |
| 敷金:12ヶ月- | 礼金:0ヶ月 |
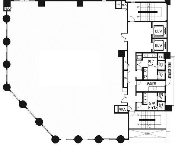
| 面積:306.05m² | 所在階:地上2階 |
| 間取り:事務所 | 築年月:1987年10月 |
| 賃料/管理費 | 相談 (税別)/相談 (税別) | フリーレント | 0ヶ月 |
|---|---|---|---|
| 敷金/礼金 | 12ヶ月/0ヶ月 | 内見・入居 | 相談 |
| 間取り | 事務所 | 面積 | 306.05m² |
| 所在階 | 地上2階 | 最大スペース | |
| 住所 | 東京都中央区日本橋浜町2丁目1番1号 | 最寄駅 | 東京メトロ半蔵門線「水天宮前」駅徒歩4分 都営新宿線「浜町」駅徒歩5分 都営浅草線「人形町」駅徒歩8分 |
| その他交通 | 築年月 | 1987年10月 | |
| 方角 | 構造 | 鉄骨鉄筋コンクリート造(SRC造) 9階建 | |
| 契約期間 | 2年間 | 契約形態 | 普通借家 |
| 償却 | 0ヶ月 | 設備 | エレベーター , OAフロア |
| 更新料 | 0ヶ月 | 更新日 | 2025年09月11日 |
| 備考 | ・複数フロア優先 | ||



お問い合わせの際は、「部屋No.46857」とお伝えください。





























新大橋通り沿いにあり視認性が高く、高級感のある外観のオフィスビルです2017年12月、内装全面リニューアル工事を実施し、リフレッシュして生まれ変わりました。機械警備と有人管理(日勤)併用でセキュリティも安心です
各階に男女別トイレ、エレベーター2基、OAフロアと設備面も充実しています。
駅周辺は飲食店が充実していて、ランチ時に困ることはありません!