推奨利用人数
25人~29人
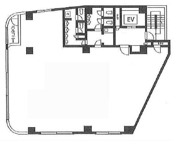
杏林ビル 4階
- 所在地:東京都文京区湯島4丁目2番1号
- 交通:東京メトロ千代田線「湯島」駅徒歩5分
- 交通2:JR山手線「御徒町」駅徒歩10分
- 交通3:都営大江戸線「本郷三丁目」駅徒歩5分
| 賃料:639,870円 (税別) | 管理費:174,510円 (税別) |
| 敷金:6ヶ月- | 礼金:0ヶ月 |
| 面積:192.3m² | 所在階:地上4階 |
| 間取り:事務所 | 築年月:1987年10月 |
| 賃料/管理費 | 639,870円 (税別)/174,510円 (税別) | フリーレント | 0ヶ月 |
|---|---|---|---|
| 敷金/礼金 | 6ヶ月/0ヶ月 | 内見・入居 | 内見可 |
| 間取り | 事務所 | 面積 | 192.3m² |
| 所在階 | 地上4階 | 最大スペース | |
| 住所 | 東京都文京区湯島4丁目2番1号 | 最寄駅 | 東京メトロ千代田線「湯島」駅徒歩5分 JR山手線「御徒町」駅徒歩10分 都営大江戸線「本郷三丁目」駅徒歩5分 |
| その他交通 | 築年月 | 1987年10月 | |
| 方角 | 構造 | 鉄骨鉄筋コンクリート造(SRC造) 10階建 | |
| 契約期間 | 2年間 | 契約形態 | 普通借家 |
| 償却 | 0ヶ月 | 設備 | エレベーター |
| 更新料 | 1ヶ月 | 更新日 | 2025年09月11日 |
| 備考 | |||



お問い合わせの際は、「部屋No.46903」とお伝えください。





























1987年竣工、クリーム色のタイル張りの外観、上階になるほどセットバックされた建物です。新耐震基準をクリアしています。
春日通り沿いに立地していますのでで視認性も良好!最寄の湯島駅のほか、御徒町駅や本郷三丁目駅、上野広小路駅が徒歩10分以内で利用可能、アクセスの良いオフィスです。
1フロア1テナント利用のオフィスは、男女別トイレと給湯室がコンパクトにまとまっており、室内は効率よくレイアウトすることが可能です。
周辺はオフィスや住宅が並び、飲食店やコンビニも近く利便性も良好です。