推奨利用人数
30人~39人
【成約済み】千石長谷川ビル 2階
- 所在地:東京都文京区千石4丁目45番17号
- 交通:JR山手線「巣鴨」駅徒歩8分
- 交通2:都営三田線「千石」駅徒歩3分
- 交通3:東京メトロ南北線「駒込」駅徒歩13分
| 賃料:相談 (税別) | 管理費:相談 (税別) |
| 敷金:10ヶ月- | 礼金:0ヶ月 |
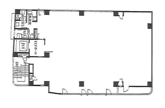
| 面積:210.68m² | 所在階:地上2階 |
| 間取り:事務所 | 築年月:1987年02月 |
| 賃料/管理費 | 相談 (税別)/相談 (税別) | フリーレント | 0ヶ月 |
|---|---|---|---|
| 敷金/礼金 | 10ヶ月/0ヶ月 | 内見・入居 | 内見可 |
| 間取り | 事務所 | 面積 | 210.68m² |
| 所在階 | 地上2階 | 最大スペース | |
| 住所 | 東京都文京区千石4丁目45番17号 | 最寄駅 | JR山手線「巣鴨」駅徒歩8分 都営三田線「千石」駅徒歩3分 東京メトロ南北線「駒込」駅徒歩13分 |
| その他交通 | 築年月 | 1987年02月 | |
| 方角 | 構造 | 鉄筋コンクリート造(RC造) 8階建 | |
| 契約期間 | その他 | 契約形態 | |
| 償却 | 2ヶ月 | 設備 | エレベーター , OAフロア |
| 更新料 | 1ヶ月 | 更新日 | 2025年09月11日 |
| 備考 | |||



お問い合わせの際は、「部屋No.46941」とお伝えください。





























1987年竣工で新耐震基準をクリアした建物、白いタイル張りの外観です。建物には機械式駐車場が併設されています。各階に男女別トイレや個別空調、機械警備完備でセキュリティ面も安心です。