推奨利用人数
25人~29人
【成約済み】ラウンドクロス大手町北(旧:ヒューリック大手町北ビル) 2階
- 所在地:東京都千代田区内神田2丁目5番5号
- 交通:東京メトロ丸の内線「大手町」駅徒歩4分
- 交通2:JR山手線「神田」駅徒歩6分
- 交通3:都営新宿線「小川町」駅徒歩9分
| 賃料:相談 (税別) | 管理費:相談 (税別) |
| 敷金:12ヶ月- | 礼金:0ヶ月 |
| 面積:183.47m² | 所在階:地上2階 |
| 間取り:事務所 | 築年月:2010年02月 |
| 賃料/管理費 | 相談 (税別)/相談 (税別) | フリーレント | 0ヶ月 |
|---|---|---|---|
| 敷金/礼金 | 12ヶ月/0ヶ月 | 内見・入居 | 内見可 |
| 間取り | 事務所 | 面積 | 183.47m² |
| 所在階 | 地上2階 | 最大スペース | |
| 住所 | 東京都千代田区内神田2丁目5番5号 | 最寄駅 | 東京メトロ丸の内線「大手町」駅徒歩4分 JR山手線「神田」駅徒歩6分 都営新宿線「小川町」駅徒歩9分 |
| その他交通 | 築年月 | 2010年02月 | |
| 方角 | 構造 | 鉄骨構造(S造) 9階建 | |
| 契約期間 | 応相談 | 契約形態 | 普通借家 |
| 償却 | 0ヶ月 | 設備 | エレベーター , OAフロア |
| 更新料 | 0ヶ月 | 更新日 | 2025年09月11日 |
| 備考 | |||



お問い合わせの際は、「部屋No.47045」とお伝えください。





























2010年竣工、透明感のあるガラスカーテンウォールが美しい建物です!新耐震基準をクリアしています。
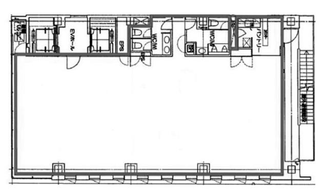
基準となるフロアは1フロア約55坪。EV2基で朝夕の忙しい時間帯もノンストレスでご利用いただけます。
室内は余計な柱のない長方形の間取り、男女別のトイレと給湯室があり使い勝手も良好です。そのほか、OAフロアや個別空調、機械警備など設備も充実しています。
外堀通り角地に立地しており、視認性も良好。周辺はコンビニや飲食店などもあり利便性も良好です。
大手町駅と神田駅どちらも利用可能です!