推奨利用人数
9人~10人
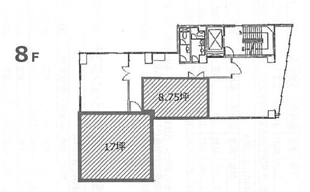
【成約済み】福清ビル(ふくせいビル) 8階
- 所在地:東京都中央区八重洲1丁目6番19号
- 交通:JR山手線「東京」駅徒歩1分
- 交通2:東京メトロ銀座線「日本橋」駅徒歩4分
- 交通3:JR山手線「東京」駅徒歩8分
| 賃料:相談 (税別) | 管理費:相談 (税別) |
| 敷金:相談- | 礼金:0ヶ月 |
| 面積:56.2m² | 所在階:地上8階 |
| 間取り:事務所 | 築年月:1960年10月 |
| 賃料/管理費 | 相談 (税別)/相談 (税別) | フリーレント | 0ヶ月 |
|---|---|---|---|
| 敷金/礼金 | 相談/0ヶ月 | 内見・入居 | 内見可 |
| 間取り | 事務所 | 面積 | 56.2m² |
| 所在階 | 地上8階 | 最大スペース | |
| 住所 | 東京都中央区八重洲1丁目6番19号 | 最寄駅 | JR山手線「東京」駅徒歩1分 東京メトロ銀座線「日本橋」駅徒歩4分 JR山手線「東京」駅徒歩8分 |
| その他交通 | 築年月 | 1960年10月 | |
| 方角 | 構造 | 鉄骨鉄筋コンクリート造(SRC造) 10階建 | |
| 契約期間 | その他 | 契約形態 | 定期借家 |
| 償却 | 20% | 設備 | エレベーター |
| 更新料 | 更新日 | 2025年09月11日 | |
| 備考 |
・定期建物賃貸借:2020年3月末頃まで ・使用可能時間は7:00~23:30までで、その時間以降は完全退室していただきます |
||
| その他費用 | ・掃除代別途 | ||



お問い合わせの際は、「部屋No.47047」とお伝えください。





























空調:個別パッケージ方式
床仕様:タイルカーペット
天井高:2370mm
JR・各線「東京」駅徒歩1分の好立地!
アクセス良好です◎