推奨利用人数
13人~14人
【成約済み】ニュー銀座ビル(銀座3) 3階
- 所在地:東京都中央区銀座3丁目11番1号
- 交通:都営浅草線「東銀座」駅徒歩1分
- 交通2:東京メトロ日比谷線「銀座」駅徒歩6分
- 交通3:東京メトロ有楽町線「新富町」駅徒歩7分
| 賃料:-- (税別) | 管理費:85,330円 (税別) |
| 敷金:10ヶ月- | 礼金:0ヶ月 |
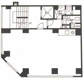
| 面積:80.6m² | 所在階:地上3階 |
| 間取り:事務所 | 築年月:1963年03月 |
| 賃料/管理費 | -- (税別)/85,330円 (税別) | フリーレント | 0ヶ月 |
|---|---|---|---|
| 敷金/礼金 | 10ヶ月/0ヶ月 | 内見・入居 | 内見可 |
| 間取り | 事務所 | 面積 | 80.6m² |
| 所在階 | 地上3階 | 最大スペース | |
| 住所 | 東京都中央区銀座3丁目11番1号 | 最寄駅 | 都営浅草線「東銀座」駅徒歩1分 東京メトロ日比谷線「銀座」駅徒歩6分 東京メトロ有楽町線「新富町」駅徒歩7分 |
| その他交通 | 築年月 | 1963年03月 | |
| 方角 | 構造 | 鉄骨鉄筋コンクリート造(SRC造) 10階建 | |
| 契約期間 | 2年間 | 契約形態 | 普通借家 |
| 償却 | 1ヶ月 | 設備 | エレベーター |
| 更新料 | 1ヶ月 | 更新日 | 2025年09月11日 |
| 備考 | |||



お問い合わせの際は、「部屋No.47055」とお伝えください。





























「銀座東二丁目交差点」角地に立地するニュー銀座ビルは茶色のパネル張りの建物、昭和通りに面した1階に紳士服店があります。
オフィスは1フロア1テナント利用、基準階25坪ほどながら男女別トイレがあります。室外にトイレがありますので貸室内は効率よくレイアウト可能です。
最寄り駅「東銀座」のほか、銀座駅や新富町、銀座一丁目など複数の駅まで徒歩10分以内で利用可能ですので、利便性も良好! 周辺は飲食店も多く、銀座の華やかな雰囲気も感じられる立地です。