推奨利用人数
3人~4人
【成約済み】プレジリア人形町 801号室
- 所在地:東京都中央区日本橋富沢町7番10号
- 交通:東京メトロ日比谷線「人形町」駅徒歩5分
- 交通2:都営浅草線「東日本橋」駅徒歩7分
- 交通3:都営新宿線「浜町」駅徒歩7分
| 賃料:-- | 管理費:10,000円 |
| 敷金:2ヶ月- | 礼金:1ヶ月 |
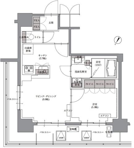
| 面積:41.5m² | 所在階:地上8階 |
| 間取り:1LDK | 築年月:2014年01月 |
| 賃料/管理費 | --/10,000円 | フリーレント | 0ヶ月 |
|---|---|---|---|
| 敷金/礼金 | 2ヶ月/1ヶ月 | 内見・入居 | 相談 |
| 間取り | 1LDK | 面積 | 41.5m² |
| 所在階 | 地上8階 | 最大スペース | |
| 住所 | 東京都中央区日本橋富沢町7番10号 | 最寄駅 | 東京メトロ日比谷線「人形町」駅徒歩5分 都営浅草線「東日本橋」駅徒歩7分 都営新宿線「浜町」駅徒歩7分 |
| その他交通 | 築年月 | 2014年01月 | |
| 方角 | 構造 | 鉄筋コンクリート造(RC造) 10階建 | |
| 契約期間 | 2年間 | 契約形態 | 普通借家 |
| 償却 | 0ヶ月 | 設備 | エレベーター |
| 更新料 | 1ヶ月 | 更新日 | 2025年09月11日 |
| 入会金 | 1ヶ月 | ||
| 備考 | ・ペット不可、楽器相談 | ||
| その他費用 | ・鍵交換作業費用(入居時):20,000円(税別) ・退去時清掃費用:実費 |
||



お問い合わせの際は、「部屋No.47125」とお伝えください。





























365日24時間対応・24時間コールセンターで安心!
エアコンやCS付で室内も充実!