推奨利用人数
13人~14人
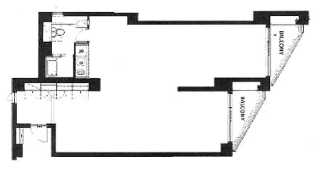
【成約済み】アークヒルズエグゼクティブタワー N811号室
- 所在地:東京都港区赤坂1丁目14番5号
- 交通:東京メトロ南北線「六本木一丁目」駅徒歩4分
- 交通2:東京メトロ南北線「溜池山王」駅徒歩4分
- 交通3:東京メトロ日比谷線「神谷町」駅徒歩7分
| 賃料:相談 (税別) | 管理費:相談 (税別) |
| 敷金:相談- | 礼金:0ヶ月 |
| 面積:101.16m² | 所在階:地上8階 |
| 間取り:1R | 築年月:1999年03月 |
| 賃料/管理費 | 相談 (税別)/相談 (税別) | フリーレント | 0ヶ月 |
|---|---|---|---|
| 敷金/礼金 | 相談/0ヶ月 | 内見・入居 | 相談 |
| 間取り | 1R | 面積 | 101.16m² |
| 所在階 | 地上8階 | 最大スペース | |
| 住所 | 東京都港区赤坂1丁目14番5号 | 最寄駅 | 東京メトロ南北線「六本木一丁目」駅徒歩4分 東京メトロ南北線「溜池山王」駅徒歩4分 東京メトロ日比谷線「神谷町」駅徒歩7分 |
| その他交通 | 築年月 | 1999年03月 | |
| 方角 | 構造 | 鉄筋コンクリート造(RC造) 9階建 | |
| 契約期間 | その他 | 契約形態 | |
| 償却 | 0ヶ月 | 設備 | エレベーター |
| 更新料 | 更新日 | 2025年09月11日 | |
| 備考 | |||



お問い合わせの際は、「部屋No.47181」とお伝えください。





























アークヒルズの一角をなす格調高い立地、屋上庭園あり。
お部屋からの眺望は、緑が見えて、本当に気持ちいいです。お部屋もタイルカーペットが敷いてあり、マンションという感じはしませんので、オフィス向きです。駐車場があるので、車でのアクセスも良好です。