推奨利用人数
7人~8人
【成約済み】ザパークハビオ上野レジデンス 705号室
- 所在地:東京都台東区上野3丁目10番11号
- 交通:JR山手線「御徒町」駅徒歩2分
- 交通2:東京メトロ日比谷線「仲御徒町」駅徒歩5分
- 交通3:東京メトロ銀座線「末広町」駅徒歩5分
| 賃料:-- | 管理費:15,000円 |
| 敷金:2ヶ月- | 礼金:0ヶ月 |
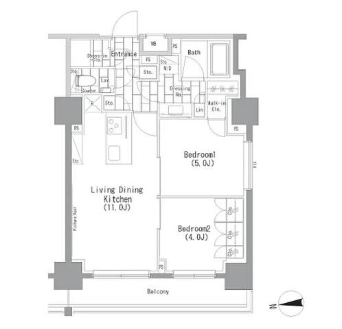
| 面積:51.1m² | 所在階:地上7階 |
| 間取り:2LDK | 築年月:2015年10月 |
| 賃料/管理費 | --/15,000円 | フリーレント | 0ヶ月 |
|---|---|---|---|
| 敷金/礼金 | 2ヶ月/0ヶ月 | 内見・入居 | 内見可 |
| 間取り | 2LDK | 面積 | 51.1m² |
| 所在階 | 地上7階 | 最大スペース | |
| 住所 | 東京都台東区上野3丁目10番11号 | 最寄駅 | JR山手線「御徒町」駅徒歩2分 東京メトロ日比谷線「仲御徒町」駅徒歩5分 東京メトロ銀座線「末広町」駅徒歩5分 |
| その他交通 | 築年月 | 2015年10月 | |
| 方角 | 構造 | 鉄筋コンクリート造(RC造) 12階建 | |
| 契約期間 | 2年間 | 契約形態 | 普通借家 |
| 償却 | 0ヶ月 | 設備 | エレベーター |
| 更新料 | 1ヶ月 | 更新日 | 2025年09月11日 |
| 備考 | ・近隣工事有 | ||
| その他費用 | ・駐車場:35,000円(税別) ・駐輪場:400円(税別) ・バイク置き場:3,000円(税別) |
||



お問い合わせの際は、「部屋No.47205」とお伝えください。





























複数路線利用可能で交通アクセス良好
周辺にコンビニ・飲食店が多く、ランチにも便利
管理人日勤、オートロック、防犯カメラなど、セキュリティ面も安心です
駅近なのに駐車場、駐輪場、バイク置き場完備(要空き確認)
ペット飼育、楽器演奏相談できます(諸条件要確認)