推奨利用人数
5人~6人
【成約済み】新橋STビル 1階+地下
- 所在地:東京都港区新橋5丁目20番3号
- 交通:JR山手線「新橋」駅徒歩7分
- 交通2:都営三田線「御成門」駅徒歩6分
- 交通3:都営大江戸線「汐留」駅徒歩10分
| 賃料:-- (税別) | 管理費:54,250円 (税別) |
| 敷金:6ヶ月- | 礼金:0ヶ月 |
| 面積:71.74m² | 所在階:地上1階 |
| 間取り:事務所 | 築年月:1988年08月 |
| 賃料/管理費 | -- (税別)/54,250円 (税別) | フリーレント | 0ヶ月 |
|---|---|---|---|
| 敷金/礼金 | 6ヶ月/0ヶ月 | 内見・入居 | 内見可 |
| 間取り | 事務所 | 面積 | 71.74m² |
| 所在階 | 地上1階 | 最大スペース | |
| 住所 | 東京都港区新橋5丁目20番3号 | 最寄駅 | JR山手線「新橋」駅徒歩7分 都営三田線「御成門」駅徒歩6分 都営大江戸線「汐留」駅徒歩10分 |
| その他交通 | 築年月 | 1988年08月 | |
| 方角 | 構造 | 鉄骨鉄筋コンクリート造(SRC造) 8階建 | |
| 契約期間 | 3年間 | 契約形態 | 定期借家 |
| 償却 | 0ヶ月 | 設備 | エレベーター |
| 更新料 | 0ヶ月 | 更新日 | 2025年09月11日 |
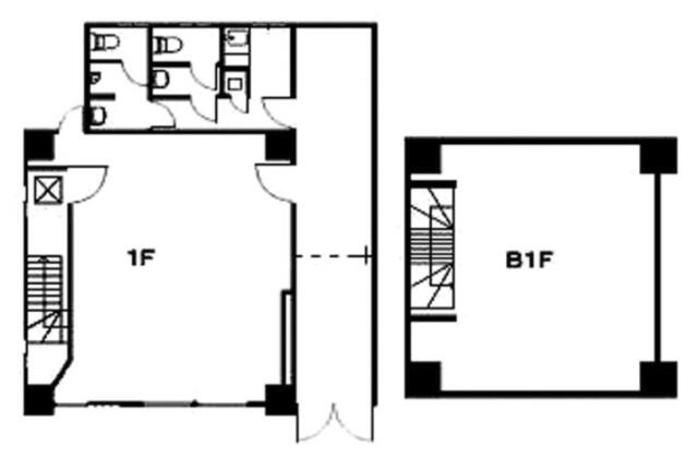
| 備考 | ・1階12.18坪+地下1階9.52坪のセット貸し | ||



お問い合わせの際は、「部屋No.47227」とお伝えください。





























1988年竣工の新耐震基準をクリアしたオフィスです。外観は白いパネル張りの清潔感のある建物です。1階には宅急便の営業所があり目印になります。男女別トイレと給湯室が室外にあり、貸室内は効率よくレイアウトできます。
新橋駅のほか、御成門駅・汐留駅も徒歩10分圏内で利用可能ですので、各方面へのアクセスも良好!
周辺は落ち着いたオフィス街、飲食店も多くコンビニも近隣にありますので便利です。