推奨利用人数
30人~39人
【成約済み】麹町HFビル 4階
- 所在地:東京都千代田区麹町3丁目2番4号
- 交通:東京メトロ有楽町線「麹町」駅徒歩3分
- 交通2:東京メトロ半蔵門線「半蔵門」駅徒歩3分
- 交通3:JR中央・総武線「四ツ谷」駅徒歩11分
| 賃料:相談 (税別) | 管理費:相談 (税別) |
| 敷金:12ヶ月- | 礼金:0ヶ月 |
| 面積:257.79m² | 所在階:地上4階 |
| 間取り:事務所 | 築年月:1994年03月 |
| 賃料/管理費 | 相談 (税別)/相談 (税別) | フリーレント | 0ヶ月 |
|---|---|---|---|
| 敷金/礼金 | 12ヶ月/0ヶ月 | 内見・入居 | 内見可 |
| 間取り | 事務所 | 面積 | 257.79m² |
| 所在階 | 地上4階 | 最大スペース | |
| 住所 | 東京都千代田区麹町3丁目2番4号 | 最寄駅 | 東京メトロ有楽町線「麹町」駅徒歩3分 東京メトロ半蔵門線「半蔵門」駅徒歩3分 JR中央・総武線「四ツ谷」駅徒歩11分 |
| その他交通 | 築年月 | 1994年03月 | |
| 方角 | 構造 | 鉄骨構造(S造) 9階建 | |
| 契約期間 | 応相談 | 契約形態 | 普通借家 |
| 償却 | 相談 | 設備 | エレベーター , OAフロア |
| 更新料 | 更新日 | 2025年09月11日 | |
| 備考 |
・2011年空調更新 ・エントランス開閉時間 平日・土曜日 7:00-21:00 日祝 終日閉扉(応相談) |
||



お問い合わせの際は、「部屋No.47260」とお伝えください。





























麹町HFビルは1994年竣工のオフィスビル、新耐震基準をクリアした建物です。新宿通り沿いに面して青みがかったガラスと石張りの外観がグレードの高さを感じさせる建物です。
最寄の麹町駅・半蔵門駅からは徒歩3分、新宿通りを進み四ッ谷駅も利用可能でアクセス良好です。
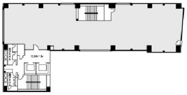
建物にはEV2基、機械式駐車場完備、男女別のトイレや給湯室が室外に設けられているため、レイアウトしやすい間取りです。機械警備も完備されていますのでセキュリティ面も安心です。
周辺はカフェやコンビニ、飲食店も多く便利なエリアです!ぜひご検討ください!