推奨利用人数
20人~24人
【成約済み】グランデ秋葉原(旧称:秋葉原リープレックス R’s) 3階
- 所在地:東京都千代田区外神田6丁目8番10号
- 交通:東京メトロ千代田線「湯島」駅徒歩2分
- 交通2:東京メトロ銀座線「末広町」駅徒歩3分
- 交通3:JR山手線「御徒町」駅徒歩7分
| 賃料:-- (税別) | 管理費:0円 (税別) |
| 敷金:4ヶ月- | 礼金:0ヶ月 |
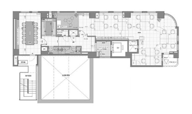
| 面積:138.64m² | 所在階:地上3階 |
| 間取り:事務所 | 築年月:1994年07月 |
| 賃料/管理費 | -- (税別)/0円 (税別) | フリーレント | 0ヶ月 |
|---|---|---|---|
| 敷金/礼金 | 4ヶ月/0ヶ月 | 内見・入居 | 内見可 |
| 間取り | 事務所 | 面積 | 138.64m² |
| 所在階 | 地上3階 | 最大スペース | |
| 住所 | 東京都千代田区外神田6丁目8番10号 | 最寄駅 | 東京メトロ千代田線「湯島」駅徒歩2分 東京メトロ銀座線「末広町」駅徒歩3分 JR山手線「御徒町」駅徒歩7分 |
| その他交通 | 築年月 | 1994年07月 | |
| 方角 | 構造 | 鉄筋コンクリート造(RC造) 6階建 | |
| 契約期間 | 応相談 | 契約形態 | 普通借家 |
| 償却 | 0ヶ月 | 設備 | エレベーター , OAフロア |
| 更新料 | 0ヶ月 | 更新日 | 2025年09月11日 |
| 備考 | ・3階:セットアップオフィス | ||



お問い合わせの際は、「部屋No.47267」とお伝えください。





























1994年竣工の新耐震基準をクリアした建物です。2018年4月にエントランスやEVホール、貸室内を大規模リニューアル!
会議室や応接スペース、受付の造作付オフィスにしてお引渡しいたしますので、すぐにお使いいただけます!
エントランスにはオートロックと不停止機能付EVでセキュリティも安心です。
最寄り駅は、湯島駅で徒歩2分、末広町駅へも徒歩3分の駅近!秋葉原駅へも10分と徒歩圏内です。