推奨利用人数
15人~19人
【成約済み】TQ東神田(旧:トーシン東神田ビル) 6階
- 所在地:東京都千代田区東神田1丁目11番14号
- 交通:都営浅草線「東日本橋」駅徒歩7分
- 交通2:都営新宿線「馬喰横山」駅徒歩7分
- 交通3:JR中央・総武線「浅草橋」駅徒歩7分
| 賃料:-- (税別) | 管理費:0円 (税別) |
| 敷金:6ヶ月- | 礼金:0ヶ月 |
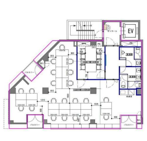
| 面積:127.54m² | 所在階:地上6階 |
| 間取り:事務所 | 築年月:1989年09月 |
| 賃料/管理費 | -- (税別)/0円 (税別) | フリーレント | 0ヶ月 |
|---|---|---|---|
| 敷金/礼金 | 6ヶ月/0ヶ月 | 内見・入居 | 内見可 |
| 間取り | 事務所 | 面積 | 127.54m² |
| 所在階 | 地上6階 | 最大スペース | |
| 住所 | 東京都千代田区東神田1丁目11番14号 | 最寄駅 | 都営浅草線「東日本橋」駅徒歩7分 都営新宿線「馬喰横山」駅徒歩7分 JR中央・総武線「浅草橋」駅徒歩7分 |
| その他交通 | JR総武本線「馬喰町」駅4分 | 築年月 | 1989年09月 |
| 方角 | 構造 | 鉄骨鉄筋コンクリート造(SRC造) 8階建 | |
| 契約期間 | 2年間 | 契約形態 | 普通借家 |
| 償却 | 1ヶ月 | 設備 | エレベーター , OAフロア |
| 更新料 | 0ヶ月 | 更新日 | 2025年09月11日 |
| 備考 | |||



お問い合わせの際は、「部屋No.47270」とお伝えください。





























1989年竣工のオフィス、石張りの高級感あふれる外観の建物です。
2017年12月、共用部(エントランス・EVホール)リニューアル実施済みで来客者にも好印象を与えます。
1フロア1テナント利用のオフィスは。男女別トイレと給湯、OAフロアや個別空調など設備面も充実。セキュリティは機械警備を導入しており安心してご利用できます!さらに会議室と受付の造作がありますので、内装費用を節約してすぐに業務を開始していただけます。
靖国通りから少し入った場所に立地しており、目の前は学校がある落ち着いた立地です。靖国通りまで出ればコンビニや飲食店も多く利便性も良好です!