推奨利用人数
11人~12人
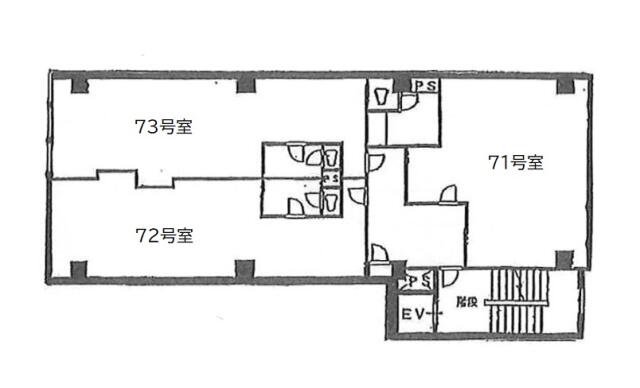
【成約済み】新倉ビル 73号室
- 所在地:東京都港区新橋5丁目14番4号
- 交通:JR山手線「新橋」駅徒歩5分
- 交通2:都営大江戸線「汐留」駅徒歩5分
- 交通3:都営三田線「御成門」駅徒歩7分
| 賃料:-- (税別) | 管理費:0円 (税別) |
| 敷金:6ヶ月- | 礼金:0ヶ月 |
| 面積:66.12m² | 所在階:地上7階 |
| 間取り:事務所 | 築年月:1965年02月 |
| 賃料/管理費 | -- (税別)/0円 (税別) | フリーレント | 0ヶ月 |
|---|---|---|---|
| 敷金/礼金 | 6ヶ月/0ヶ月 | 内見・入居 | 内見可 |
| 間取り | 事務所 | 面積 | 66.12m² |
| 所在階 | 地上7階 | 最大スペース | |
| 住所 | 東京都港区新橋5丁目14番4号 | 最寄駅 | JR山手線「新橋」駅徒歩5分 都営大江戸線「汐留」駅徒歩5分 都営三田線「御成門」駅徒歩7分 |
| その他交通 | 築年月 | 1965年02月 | |
| 方角 | 構造 | 鉄骨鉄筋コンクリート造(SRC造) 9階建 | |
| 契約期間 | 2年間 | 契約形態 | 普通借家 |
| 償却 | 2ヶ月 | 設備 | エレベーター , OAフロア |
| 更新料 | 0ヶ月 | 更新日 | 2025年09月11日 |
| 備考 | |||
| その他費用 | ・保証会社加入要 | ||



お問い合わせの際は、「部屋No.47274」とお伝えください。





























1965年竣工のオフィス、2017年に耐震補強を行っておりますので、安心してご利用いただけます。
最寄駅の御成門駅のほか、汐留駅や新橋駅が利用できアクセス良好です。
1フロアを3つの区画に分割しており、それぞれ室内に専用のトイレと水回りがありますので気兼ねなくご利用いただけます。セキュリティは機械警備を完備しています。OA床や個別空調など設備面も充実しています。
周辺にはコンビニや飲食店が並び、利便性も良好です。