推奨利用人数
40人以上
【成約済み】八丁堀FRONT(八丁堀2) 6階
- 所在地:東京都中央区八丁堀2丁目20番9号
- 交通:東京メトロ日比谷線「八丁堀」駅徒歩2分
- 交通2:都営浅草線「宝町」駅徒歩7分
- 交通3:東京メトロ東西線「茅場町」駅徒歩8分
| 賃料:相談 (税別) | 管理費:相談 (税別) |
| 敷金:10ヶ月- | 礼金:0ヶ月 |
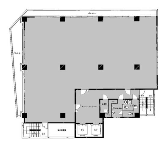
| 面積:294.48m² | 所在階:地上6階 |
| 間取り:事務所 | 築年月:1989年03月 |
| 賃料/管理費 | 相談 (税別)/相談 (税別) | フリーレント | 0ヶ月 |
|---|---|---|---|
| 敷金/礼金 | 10ヶ月/0ヶ月 | 内見・入居 | 内見可 |
| 間取り | 事務所 | 面積 | 294.48m² |
| 所在階 | 地上6階 | 最大スペース | |
| 住所 | 東京都中央区八丁堀2丁目20番9号 | 最寄駅 | 東京メトロ日比谷線「八丁堀」駅徒歩2分 都営浅草線「宝町」駅徒歩7分 東京メトロ東西線「茅場町」駅徒歩8分 |
| その他交通 | 築年月 | 1989年03月 | |
| 方角 | 構造 | 鉄骨鉄筋コンクリート造(SRC造) 9階建 | |
| 契約期間 | 2年間 | 契約形態 | 普通借家 |
| 償却 | 0ヶ月 | 設備 | エレベーター , OAフロア |
| 更新料 | 更新日 | 2025年09月11日 | |
| 備考 | |||



お問い合わせの際は、「部屋No.47291」とお伝えください。





























1988年竣工の「八丁堀FRONT」は新耐震基準をクリアした建物。新大橋通りから1本入った場所に立地しています。
建物にはEV2基(不停止機能付)、男女別トイレ、OAフロアなど設備が充実しています。機械警備も完備されていますのでセキュリティも安心です。
24時間いつでも利用可能でフレキシブルなワークスタイルに対応が可能です!
最寄の八丁堀駅のほか、複数の駅が利用可能で便利な立地です。近隣は飲食店も多く隣のビルにはコンビニがありますので重宝します。