推奨利用人数
40人以上
【成約済み】富士ビル(芝大門2丁目11) 5階
- 所在地:東京都港区芝大門2丁目11番1号
- 交通:都営大江戸線「大門」駅徒歩4分
- 交通2:JR山手線「浜松町」駅徒歩5分
- 交通3:都営三田線「芝公園」駅徒歩6分
| 賃料:-- (税別) | 管理費:300,625円 (税別) |
| 敷金:6ヶ月- | 礼金:0ヶ月 |
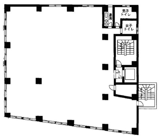
| 面積:305.79m² | 所在階:地上5階 |
| 間取り:事務所 | 築年月:1973年01月 |
| 賃料/管理費 | -- (税別)/300,625円 (税別) | フリーレント | 0ヶ月 |
|---|---|---|---|
| 敷金/礼金 | 6ヶ月/0ヶ月 | 内見・入居 | 内見可 |
| 間取り | 事務所 | 面積 | 305.79m² |
| 所在階 | 地上5階 | 最大スペース | |
| 住所 | 東京都港区芝大門2丁目11番1号 | 最寄駅 | 都営大江戸線「大門」駅徒歩4分 JR山手線「浜松町」駅徒歩5分 都営三田線「芝公園」駅徒歩6分 |
| その他交通 | 築年月 | 1973年01月 | |
| 方角 | 構造 | 鉄骨鉄筋コンクリート造(SRC造) 7階建 | |
| 契約期間 | 5年間 | 契約形態 | 定期借家 |
| 償却 | 0ヶ月 | 設備 | エレベーター , OAフロア |
| 更新料 | 0ヶ月 | 更新日 | 2025年09月11日 |
| 備考 | |||



お問い合わせの際は、「部屋No.47295」とお伝えください。





























富士ビルは1973年竣工のオフィス、1995年に耐震補強工事を実施しています。2007年にエントランスや水回りをリニューアルしていますので快適にご利用になれます。
第一京浜から少し入った場所に立地しており、周辺は飲食店や居酒屋さんが多いエリア、東京タワーや増上寺といった名所からも近いエリアです。
1フロア1テナント利用のオフィスには、室内に男女別トイレや給湯があり使い勝手も良好です。24時間いつでもご利用可能、機械警備も完備していますのでセキュリティ面も安心です。1階のピロティは平置き駐車場になっています。