推奨利用人数
15人~19人
【成約済み】龍公亭ビル 6階
- 所在地:東京都新宿区神楽坂3丁目5番
- 交通:東京メトロ有楽町線「飯田橋」駅徒歩2分
- 交通2:都営大江戸線「牛込神楽坂」駅徒歩7分
- 交通3:東京メトロ東西線「神楽坂」駅徒歩8分
| 賃料:-- (税別) | 管理費:0円 (税別) |
| 敷金:6ヶ月- | 礼金:2ヶ月 |
| 面積:103.01m² | 所在階:地上6階 |
| 間取り:事務所 | 築年月:2008年03月 |
| 賃料/管理費 | -- (税別)/0円 (税別) | フリーレント | 0ヶ月 |
|---|---|---|---|
| 敷金/礼金 | 6ヶ月/2ヶ月 | 内見・入居 | |
| 間取り | 事務所 | 面積 | 103.01m² |
| 所在階 | 地上6階 | 最大スペース | |
| 住所 | 東京都新宿区神楽坂3丁目5番 | 最寄駅 | 東京メトロ有楽町線「飯田橋」駅徒歩2分 都営大江戸線「牛込神楽坂」駅徒歩7分 東京メトロ東西線「神楽坂」駅徒歩8分 |
| その他交通 | 築年月 | 2008年03月 | |
| 方角 | 構造 | 鉄骨構造(S造) 7階建 | |
| 契約期間 | 2年間 | 契約形態 | 普通借家 |
| 償却 | 0ヶ月 | 設備 | エレベーター |
| 更新料 | 1ヶ月 | 更新日 | 2025年09月11日 |
| 備考 | |||



お問い合わせの際は、「部屋No.47331」とお伝えください。





























龍公亭ビルは2008年竣工、神楽坂の商店街沿いのオフィスです。1階には老舗の中華料理店があり、目印になります。
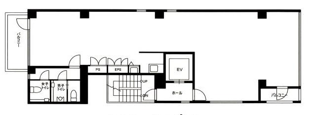
1フロア1テナント利用のオフィスには、男女別トイレと給湯室があり使い勝手も良好です。
目の前は商店街、人通りの多い賑やかなエリアのため、サービス店舗としての利用も相談可能!(飲食は不可)
最寄の飯田橋駅のほか、神楽坂駅や牛込神楽坂駅も徒歩10分以内で利用でき複数の路線を利用することも可能です。
周辺は飲食店の多いエリア、ランチ時が楽しみになりそうです。