推奨利用人数
9人~10人
【成約済み】KT鍛冶町ビル 4階
- 所在地:東京都千代田区鍛冶町1丁目10番7号
- 交通:JR山手線「神田」駅徒歩5分
- 交通2:東京メトロ銀座線「三越前」駅徒歩7分
- 交通3:東京メトロ日比谷線「小伝馬町」駅徒歩6分
| 賃料:-- (税別) | 管理費:30,000円 (税別) |
| 敷金:6ヶ月- | 礼金:0ヶ月 |
| 面積:60.17m² | 所在階:地上4階 |
| 間取り:事務所 | 築年月:1975年02月 |
| 賃料/管理費 | -- (税別)/30,000円 (税別) | フリーレント | 0ヶ月 |
|---|---|---|---|
| 敷金/礼金 | 6ヶ月/0ヶ月 | 内見・入居 | 内見可 |
| 間取り | 事務所 | 面積 | 60.17m² |
| 所在階 | 地上4階 | 最大スペース | |
| 住所 | 東京都千代田区鍛冶町1丁目10番7号 | 最寄駅 | JR山手線「神田」駅徒歩5分 東京メトロ銀座線「三越前」駅徒歩7分 東京メトロ日比谷線「小伝馬町」駅徒歩6分 |
| その他交通 | JR総武本線「新日本橋」駅3分 | 築年月 | 1975年02月 |
| 方角 | 構造 | 鉄骨構造(S造) 7階建 | |
| 契約期間 | 2年間 | 契約形態 | 普通借家 |
| 償却 | 0ヶ月 | 設備 | エレベーター |
| 更新料 | 1ヶ月 | 更新日 | 2025年09月11日 |
| 備考 | |||



お問い合わせの際は、「部屋No.47338」とお伝えください。





























1975年竣工、白い外壁に金文字でビル名が飾られた建物です。
中央通りから1本入った場所に立地しており、周辺は比較的落ち着いた環境です。
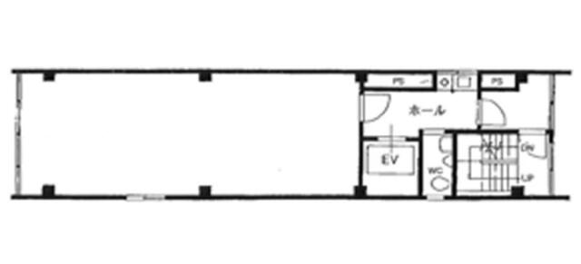
1フロア1テナント利用、トイレと水回りは室外にありますので貸室内は効率よくレイアウトすることができます。
神田駅南口から徒歩5分、三越前駅や小伝馬町駅へも徒歩6-7分で利用することができアクセスも便利です。
周辺には飲食店も多くランチにも便利です。