推奨利用人数
20人~24人
【成約済み】田中ビルディング(外神田) 5階
- 所在地:東京都千代田区外神田5丁目3番4号
- 交通:東京メトロ銀座線「末広町」駅徒歩3分
- 交通2:JR山手線「御徒町」駅徒歩5分
- 交通3:東京メトロ千代田線「湯島」駅徒歩5分
| 賃料:-- (税別) | 管理費:80,000円 (税別) |
| 敷金:8ヶ月- | 礼金:0ヶ月 |
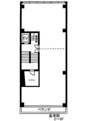
| 面積:132.23m² | 所在階:地上5階 |
| 間取り:事務所 | 築年月:1971年05月 |
| 賃料/管理費 | -- (税別)/80,000円 (税別) | フリーレント | 0ヶ月 |
|---|---|---|---|
| 敷金/礼金 | 8ヶ月/0ヶ月 | 内見・入居 | |
| 間取り | 事務所 | 面積 | 132.23m² |
| 所在階 | 地上5階 | 最大スペース | |
| 住所 | 東京都千代田区外神田5丁目3番4号 | 最寄駅 | 東京メトロ銀座線「末広町」駅徒歩3分 JR山手線「御徒町」駅徒歩5分 東京メトロ千代田線「湯島」駅徒歩5分 |
| その他交通 | 築年月 | 1971年05月 | |
| 方角 | 構造 | 鉄骨鉄筋コンクリート造(SRC造) 8階建 | |
| 契約期間 | 2年間 | 契約形態 | 定期借家 |
| 償却 | 2ヶ月 | 設備 | エレベーター |
| 更新料 | 1ヶ月 | 更新日 | 2025年09月11日 |
| 備考 | エントランス開閉時間:平日・土曜 7時~20時(日祝は終日閉館、時間外を含めカードキーにて入退室可) | ||



お問い合わせの際は、「部屋No.47340」とお伝えください。





























1971年竣工のオフィスビル、グリーンの外壁と黄色い窓面の枠回りのコントラストの外観が個性的な建物です。
中央通沿いに面していますので、来客時にはわかりやすい立地です。徒歩5分圏内で末広町・上野広小路・御徒町・湯島駅利用可能!交通アクセスの良い立地です。
周辺は飲食店も多く、銀行や郵便局もあり利便性も良好です!