推奨利用人数
15人~19人
【成約済み】VORT南青山Ⅱ(旧称:QCcube南青山115) 4階
- 所在地:東京都港区南青山1丁目15番41号
- 交通:東京メトロ半蔵門線「青山一丁目」駅徒歩4分
- 交通2:東京メトロ千代田線「乃木坂」駅徒歩5分
- 交通3:東京メトロ銀座線「外苑前」駅徒歩10分
| 賃料:-- (税別) | 管理費:112,350円 (税別) |
| 敷金:4ヶ月- | 礼金:1ヶ月 |
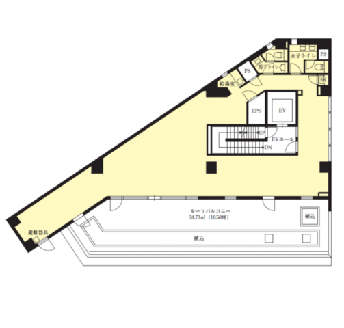
| 面積:123.81m² | 所在階:地上4階 |
| 間取り:事務所 | 築年月:2009年01月 |
| 賃料/管理費 | -- (税別)/112,350円 (税別) | フリーレント | 4ヶ月 |
|---|---|---|---|
| 敷金/礼金 | 4ヶ月/1ヶ月 | 内見・入居 | 内見可 |
| 間取り | 事務所 | 面積 | 123.81m² |
| 所在階 | 地上4階 | 最大スペース | |
| 住所 | 東京都港区南青山1丁目15番41号 | 最寄駅 | 東京メトロ半蔵門線「青山一丁目」駅徒歩4分 東京メトロ千代田線「乃木坂」駅徒歩5分 東京メトロ銀座線「外苑前」駅徒歩10分 |
| その他交通 | 築年月 | 2009年01月 | |
| 方角 | 構造 | 鉄筋コンクリート造(RC造) 4階建 | |
| 契約期間 | 3年間 | 契約形態 | 定期借家 |
| 償却 | 0ヶ月 | 設備 | エレベーター , OAフロア |
| 更新料 | 更新日 | 2025年09月11日 | |
| 備考 | |||



お問い合わせの際は、「部屋No.47370」とお伝えください。





























2009年竣工のオフィスビル、新耐震基準をクリアした建物です。外苑西通りから少し入った場所に立地している落ち着いた環境のオフィスです。裏手は住宅街になっています。
大きな窓がたくさんある、白い外観の建物。EV1基、OAフロアや個別空調、トイレ男女別など設備面も充実しています。
機械警備完備でセキュリティ面も安心してお使いいただけます。
最寄の青山一丁目駅のほか、乃木坂駅や外苑前駅も徒歩10分以内で利用可能!複数路線も利用できアクセス便利です。外苑西通りまで出ればコンビニや飲食店など便利な施設も多数ありますので利便性も良好です。