推奨利用人数
20人~24人
【成約済み】日本橋内山ビル 2階
- 所在地:東京都中央区日本橋本町4丁目4番16号
- 交通:JR山手線「神田」駅徒歩4分
- 交通2:東京メトロ銀座線「三越前」駅徒歩4分
- 交通3:東京メトロ日比谷線「小伝馬町」駅徒歩8分
| 賃料:-- (税別) | 管理費:0円 (税別) |
| 敷金:10ヶ月- | 礼金:0ヶ月 |
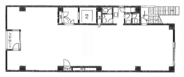
| 面積:155.5m² | 所在階:地上2階 |
| 間取り:事務所 | 築年月:1988年07月 |
| 賃料/管理費 | -- (税別)/0円 (税別) | フリーレント | 0ヶ月 |
|---|---|---|---|
| 敷金/礼金 | 10ヶ月/0ヶ月 | 内見・入居 | 内見可 |
| 間取り | 事務所 | 面積 | 155.5m² |
| 所在階 | 地上2階 | 最大スペース | |
| 住所 | 東京都中央区日本橋本町4丁目4番16号 | 最寄駅 | JR山手線「神田」駅徒歩4分 東京メトロ銀座線「三越前」駅徒歩4分 東京メトロ日比谷線「小伝馬町」駅徒歩8分 |
| その他交通 | JR総武快速線「新日本橋」駅2分 | 築年月 | 1988年07月 |
| 方角 | 構造 | 鉄骨鉄筋コンクリート造(SRC造) 8階建 | |
| 契約期間 | 2年間 | 契約形態 | 普通借家 |
| 償却 | 0ヶ月 | 設備 | エレベーター |
| 更新料 | 1ヶ月 | 更新日 | 2025年09月11日 |
| 備考 | |||



お問い合わせの際は、「部屋No.47394」とお伝えください。





























1988年竣工のオフィス、新耐震基準をクリアしています。シルバーのパネルと大きなガラス窓が清潔感のある建物です。
フロアには男女別トイレと給湯室が備えられています。機械警備も完備でセキュリティ面も安心してお使いいただけます。
中央通りから1本入った比較的落ち着いた場所に立地しています。周辺は飲食店が多く、ランチ時に困ることはありません。