推奨利用人数
40人以上
【成約済み】サンヨー堂日本橋ビル 2階
- 所在地:東京都中央区日本橋堀留町1丁目3番21号
- 交通:東京メトロ日比谷線「小伝馬町」駅徒歩4分
- 交通2:都営浅草線「人形町」駅徒歩6分
- 交通3:東京メトロ銀座線「三越前」駅徒歩8分
| 賃料:-- (税別) | 管理費:317,920円 (税別) |
| 敷金:12ヶ月- | 礼金:0ヶ月 |
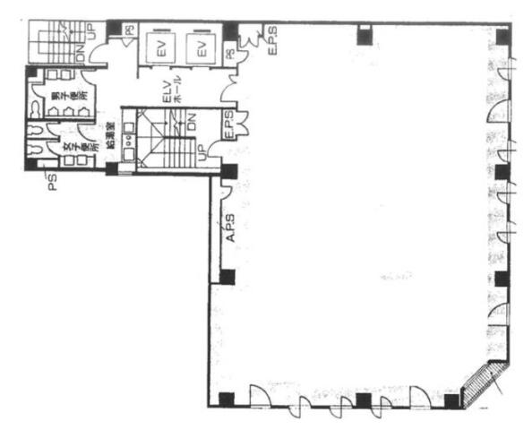
| 面積:262.74m² | 所在階:地上2階 |
| 間取り:事務所 | 築年月:1992年01月 |
| 賃料/管理費 | -- (税別)/317,920円 (税別) | フリーレント | 0ヶ月 |
|---|---|---|---|
| 敷金/礼金 | 12ヶ月/0ヶ月 | 内見・入居 | 内見可 |
| 間取り | 事務所 | 面積 | 262.74m² |
| 所在階 | 地上2階 | 最大スペース | |
| 住所 | 東京都中央区日本橋堀留町1丁目3番21号 | 最寄駅 | 東京メトロ日比谷線「小伝馬町」駅徒歩4分 都営浅草線「人形町」駅徒歩6分 東京メトロ銀座線「三越前」駅徒歩8分 |
| その他交通 | 築年月 | 1992年01月 | |
| 方角 | 構造 | 鉄骨鉄筋コンクリート造(SRC造) 9階建 | |
| 契約期間 | 2年間 | 契約形態 | 普通借家 |
| 償却 | 0ヶ月 | 設備 | エレベーター , OAフロア |
| 更新料 | 0ヶ月 | 更新日 | 2025年09月11日 |
| 備考 | |||



お問い合わせの際は、「部屋No.47403」とお伝えください。





























角地に立地する重厚感のあるオフィスビルです。
1フロア1テナント、エレベーター2基以上、OAフロア、男女トイレ別、個別空調、機械警備、24時間使用可能など快適な設備が充実です。