推奨利用人数
11人~12人
【成約済み】日東合同ビル 4階
- 所在地:東京都千代田区鍛冶町1丁目6番1号
- 交通:JR山手線「神田」駅徒歩2分
- 交通2:東京メトロ銀座線「三越前」駅徒歩7分
- 交通3:東京メトロ丸の内線「淡路町」駅徒歩9分
| 賃料:相談 (税別) | 管理費:相談 (税別) |
| 敷金:6ヶ月- | 礼金:0ヶ月 |
| 面積:77.95m² | 所在階:地上4階 |
| 間取り:事務所 | 築年月:1975年01月 |
| 賃料/管理費 | 相談 (税別)/相談 (税別) | フリーレント | 0ヶ月 |
|---|---|---|---|
| 敷金/礼金 | 6ヶ月/0ヶ月 | 内見・入居 | 内見可 |
| 間取り | 事務所 | 面積 | 77.95m² |
| 所在階 | 地上4階 | 最大スペース | |
| 住所 | 東京都千代田区鍛冶町1丁目6番1号 | 最寄駅 | JR山手線「神田」駅徒歩2分 東京メトロ銀座線「三越前」駅徒歩7分 東京メトロ丸の内線「淡路町」駅徒歩9分 |
| その他交通 | JR総武本線「新日本橋」駅徒歩5分 | 築年月 | 1975年01月 |
| 方角 | 構造 | 鉄骨構造(S造) 6階建 | |
| 契約期間 | 5年間 | 契約形態 | 定期借家 |
| 償却 | 0ヶ月 | 設備 | エレベーター |
| 更新料 | 1ヶ月 | 更新日 | 2025年09月11日 |
| 備考 | |||



お問い合わせの際は、「部屋No.47422」とお伝えください。





























「日東合同ビル」は1975年竣工のオフィスビル、茶糸のガラスカーテンウォールの外観で築年数を感じさせません。
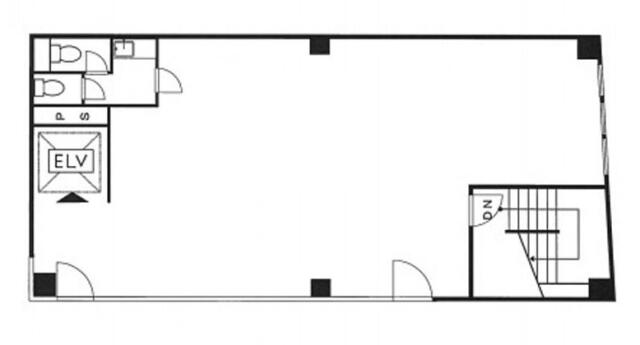
1フロア1テナント利用のオフィスには、男女別のトイレとミニキッチンがあり、使い勝手も良好。
エントランスにセコムの機械警備、不停止機能がついたEVも導入し、セキュリティ面も安心できます。
駅前エリアですので、周辺は飲食店が豊富でランチ時に困ることはありません。最寄の神田駅のほか、三越前駅や新日本橋駅が徒歩10分以内で利用可能ですのでアクセスの良さも魅力です!