推奨利用人数
15人~19人
【成約済み】芝公園電気ビルディング 802号室
- 所在地:東京都港区芝公園1丁目1番12号
- 交通:都営三田線「御成門」駅徒歩1分
- 交通2:都営大江戸線「大門」駅徒歩5分
- 交通3:JR山手線「新橋」駅徒歩10分
| 賃料:相談 (税別) | 管理費:相談 (税別) |
| 敷金:12ヶ月- | 礼金:0ヶ月 |
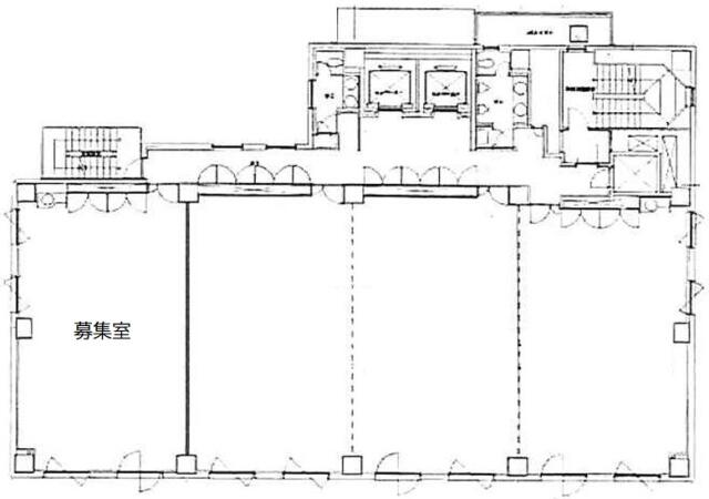
| 面積:93.32m² | 所在階:地上8階 |
| 間取り:事務所 | 築年月:1988年06月 |
| 賃料/管理費 | 相談 (税別)/相談 (税別) | フリーレント | 0ヶ月 |
|---|---|---|---|
| 敷金/礼金 | 12ヶ月/0ヶ月 | 内見・入居 | 内見可 |
| 間取り | 事務所 | 面積 | 93.32m² |
| 所在階 | 地上8階 | 最大スペース | |
| 住所 | 東京都港区芝公園1丁目1番12号 | 最寄駅 | 都営三田線「御成門」駅徒歩1分 都営大江戸線「大門」駅徒歩5分 JR山手線「新橋」駅徒歩10分 |
| その他交通 | 築年月 | 1988年06月 | |
| 方角 | 構造 | 鉄骨鉄筋コンクリート造(SRC造) 10階建 | |
| 契約期間 | 応相談 | 契約形態 | 定期借家 |
| 償却 | 0ヶ月 | 設備 | エレベーター |
| 更新料 | 0ヶ月 | 更新日 | 2025年09月11日 |
| 備考 | |||



お問い合わせの際は、「部屋No.47470」とお伝えください。





























1988年竣工、茶色のパネル張りの重厚感のあるオフィスです!新耐震基準をクリアしています。
建物にはEV2基、共用部に男女別のトイレと給湯室があり貸室内は効率よくレイアウトすることが可能です。お客様を迎えるエントランスは白を基調とした高級感のある石張りで、企業イメージを高めます。
最寄の御成門駅までは徒歩1分の距離、浜松町・新橋エリアへも徒歩10分以内の好立地です!