推奨利用人数
9人~10人
【成約済み】藤木ビル 4A号室
- 所在地:東京都中央区京橋2丁目6番6号
- 交通:JR山手線「東京」駅徒歩5分
- 交通2:東京メトロ銀座線「京橋」駅徒歩2分
- 交通3:都営浅草線「宝町」駅徒歩2分
| 賃料:-- (税別) | 管理費:0円 (税別) |
| 敷金:8ヶ月- | 礼金:0ヶ月 |
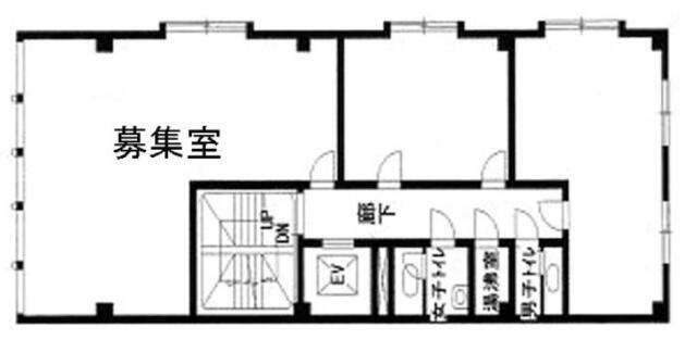
| 面積:63.8m² | 所在階:地上4階 |
| 間取り:事務所 | 築年月:1971年01月 |
| 賃料/管理費 | -- (税別)/0円 (税別) | フリーレント | 0ヶ月 |
|---|---|---|---|
| 敷金/礼金 | 8ヶ月/0ヶ月 | 内見・入居 | 内見可 |
| 間取り | 事務所 | 面積 | 63.8m² |
| 所在階 | 地上4階 | 最大スペース | |
| 住所 | 東京都中央区京橋2丁目6番6号 | 最寄駅 | JR山手線「東京」駅徒歩5分 東京メトロ銀座線「京橋」駅徒歩2分 都営浅草線「宝町」駅徒歩2分 |
| その他交通 | 築年月 | 1971年01月 | |
| 方角 | 構造 | 鉄骨鉄筋コンクリート造(SRC造) 6階建 | |
| 契約期間 | 2年間 | 契約形態 | 定期借家 |
| 償却 | 1ヶ月 | 設備 | エレベーター |
| 更新料 | 0ヶ月 | 更新日 | 2025年09月11日 |
| 備考 | |||



お問い合わせの際は、「部屋No.47472」とお伝えください。





























2013年大規模リニューアル工事実施済み!(エントランス・トイレ)
1971年竣工のオフィス、茶系の落ち着いた色合いの外観の建物です。
共用部に男女別トイレと給湯室がありますので、貸室内は効率よくレイアウトができます。