推奨利用人数
15人~19人
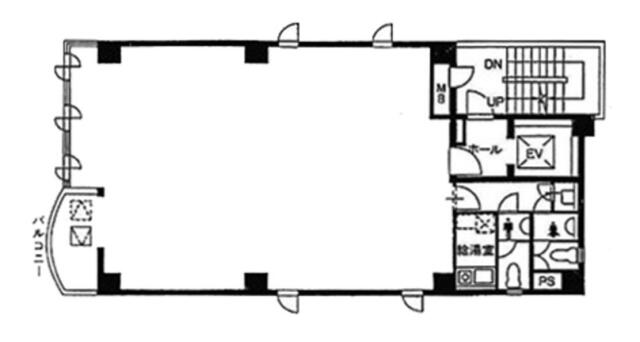
【成約済み】芝蘭会館 2階
- 所在地:東京都港区芝2丁目26番11号
- 交通:JR山手線「田町」駅徒歩8分
- 交通2:都営浅草線「三田」駅徒歩6分
- 交通3:都営三田線「芝公園」駅徒歩8分
| 賃料:-- (税別) | 管理費:0円 (税別) |
| 敷金:8ヶ月- | 礼金:0ヶ月 |
| 面積:103.47m² | 所在階:地上2階 |
| 間取り:事務所 | 築年月:1991年03月 |
| 賃料/管理費 | -- (税別)/0円 (税別) | フリーレント | 0ヶ月 |
|---|---|---|---|
| 敷金/礼金 | 8ヶ月/0ヶ月 | 内見・入居 | 内見可 |
| 間取り | 事務所 | 面積 | 103.47m² |
| 所在階 | 地上2階 | 最大スペース | |
| 住所 | 東京都港区芝2丁目26番11号 | 最寄駅 | JR山手線「田町」駅徒歩8分 都営浅草線「三田」駅徒歩6分 都営三田線「芝公園」駅徒歩8分 |
| その他交通 | 築年月 | 1991年03月 | |
| 方角 | 構造 | 鉄筋コンクリート造(RC造) 6階建 | |
| 契約期間 | 2年間 | 契約形態 | 普通借家 |
| 償却 | 2ヶ月 | 設備 | エレベーター |
| 更新料 | 1ヶ月 | 更新日 | 2025年09月11日 |
| 備考 | ・エントランス開閉時間:6:00-20:00(平日・土日祝日) | ||



お問い合わせの際は、「部屋No.47514」とお伝えください。





























24時間使用可能、機械警備、個別空調、光ファイバー導入済みです。
近隣は落ち着いた雰囲気でありながらも
第一京浜からも近くコンビニもあり便利です。