推奨利用人数
25人~29人
【成約済み】エクセレントビル(上野) 3階
- 所在地:東京都台東区上野3丁目2番1号
- 交通:東京メトロ銀座線「末広町」駅徒歩3分
- 交通2:東京メトロ日比谷線「仲御徒町」駅徒歩8分
- 交通3:JR山手線「秋葉原」駅徒歩9分
| 賃料:-- (税別) | 管理費:101,807円 (税別) |
| 敷金:6ヶ月- | 礼金:0ヶ月 |
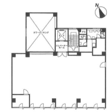
| 面積:185.12m² | 所在階:地上3階 |
| 間取り:事務所 | 築年月:1974年11月 |
| 賃料/管理費 | -- (税別)/101,807円 (税別) | フリーレント | 0ヶ月 |
|---|---|---|---|
| 敷金/礼金 | 6ヶ月/0ヶ月 | 内見・入居 | 相談 |
| 間取り | 事務所 | 面積 | 185.12m² |
| 所在階 | 地上3階 | 最大スペース | |
| 住所 | 東京都台東区上野3丁目2番1号 | 最寄駅 | 東京メトロ銀座線「末広町」駅徒歩3分 東京メトロ日比谷線「仲御徒町」駅徒歩8分 JR山手線「秋葉原」駅徒歩9分 |
| その他交通 | 築年月 | 1974年11月 | |
| 方角 | 構造 | 鉄筋コンクリート造(RC造) 7階建 | |
| 契約期間 | その他 | 契約形態 | |
| 償却 | 2ヶ月 | 設備 | エレベーター |
| 更新料 | 1ヶ月 | 更新日 | 2025年09月11日 |
| 備考 | |||



お問い合わせの際は、「部屋No.47520」とお伝えください。





























1974年竣工のオフィス、1階には飲食店があり目印になります。
秋葉原駅と御徒町駅の中間に立地、複数の路線が利用できますので交通アクセスの良いオフィスです。
各階に男女別トイレと給湯室があり、使い勝手も良好です。
周辺はオフィス街、飲食店やコンビニが近くにありますので便利な立地です。