推奨利用人数
9人~10人
平河町1丁目5番/レンタルオフィス 8~9名用
- 所在地:東京都千代田区平河町1丁目5番15号
- 交通:東京メトロ有楽町線「麹町」駅徒歩4分
- 交通2:東京メトロ半蔵門線「半蔵門」駅徒歩5分
- 交通3:東京メトロ半蔵門線「永田町」駅徒歩6分
| 賃料:337,260円 (税別) | 管理費:0円 (税別) |
| 敷金:3ヶ月- | 礼金:0ヶ月 |
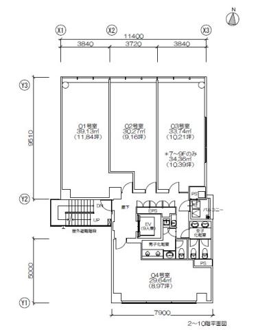
| 面積:33.79m² | 所在階:地上5階 |
| 間取り:事務所 | 築年月:2009年01月 |
| 賃料/管理費 | 337,260円 (税別)/0円 (税別) | フリーレント | 0ヶ月 |
|---|---|---|---|
| 敷金/礼金 | 3ヶ月/0ヶ月 | 内見・入居 | 相談 |
| 間取り | 事務所 | 面積 | 33.79m² |
| 所在階 | 地上5階 | 最大スペース | |
| 住所 | 東京都千代田区平河町1丁目5番15号 | 最寄駅 | 東京メトロ有楽町線「麹町」駅徒歩4分 東京メトロ半蔵門線「半蔵門」駅徒歩5分 東京メトロ半蔵門線「永田町」駅徒歩6分 |
| その他交通 | 東京メトロ南北線 永田町 徒歩6分 | 築年月 | 2009年01月 |
| 方角 | 構造 | 鉄骨構造(S造) 10階建 | |
| 契約期間 | 2年間 | 契約形態 | 普通借家 |
| 償却 | 1ヶ月 | 設備 | エレベーター , OAフロア |
| 更新料 | 1ヶ月 | 更新日 | 2025年09月11日 |
| 備考 | 専有部清掃あり:平日毎朝(床除塵、ゴミ回収) | ||
| その他費用 | ・保証会社要加入 ・清掃費・・1500円 (税別)/坪、 ・空調費・・32.49円/kwh+空調基本使用料10000円:区画(税別) |
||




お問い合わせの際は、「部屋No.47535」とお伝えください。





























麹町駅、半蔵門駅、永田町駅がある好立地!
2010年にグットデザイン賞を受賞したサービスオフィスです。
OAフロア、共用部男女別トイレ、
コンシェルジュもいる快適なオフィス環境が揃っています。
共用に会議室完備、平日毎日清掃(ごみ回収、床清掃)あり。
(清掃費等の費用は備考をご参照ください)
また、水回りが全て共用部にありますので、専有面積を
すべてオフィススペースとして利用できる点も魅力です。
ビルの規模としては大きくは無いものの、
クオリティ高いオフィス環境が凝縮された物件です。
ぜひ一度ご内見ください!