推奨利用人数
30人~39人
八丁堀サード(旧称:藤ビルディング) 5階
- 所在地:東京都中央区八丁堀3丁目14番4号
- 交通:東京メトロ日比谷線「八丁堀」駅徒歩2分
- 交通2:都営浅草線「宝町」駅徒歩6分
- 交通3:東京メトロ東西線「茅場町」駅徒歩6分
| 賃料:1,515,700円 (税別) | 管理費:0円 (税別) |
| 敷金:7ヶ月- | 礼金:0ヶ月 |
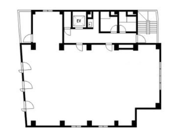
| 面積:217.85m² | 所在階:地上5階 |
| 間取り:事務所 | 築年月:1985年12月 |
| 賃料/管理費 | 1,515,700円 (税別)/0円 (税別) | フリーレント | 0ヶ月 |
|---|---|---|---|
| 敷金/礼金 | 7ヶ月/0ヶ月 | 内見・入居 | 相談 |
| 間取り | 事務所 | 面積 | 217.85m² |
| 所在階 | 地上5階 | 最大スペース | |
| 住所 | 東京都中央区八丁堀3丁目14番4号 | 最寄駅 | 東京メトロ日比谷線「八丁堀」駅徒歩2分 都営浅草線「宝町」駅徒歩6分 東京メトロ東西線「茅場町」駅徒歩6分 |
| その他交通 | 築年月 | 1985年12月 | |
| 方角 | 構造 | 鉄骨鉄筋コンクリート造(SRC造) 8階建 | |
| 契約期間 | 2年間 | 契約形態 | 普通借家 |
| 償却 | 0ヶ月 | 設備 | エレベーター , OAフロア |
| 更新料 | 0ヶ月 | 更新日 | 2025年09月11日 |
| 備考 | ・5階:セットアップオフィス | ||



お問い合わせの際は、「部屋No.47540」とお伝えください。





























1985年竣工のオフィスビル、白いタイル張りの外観の建物です。
2018年5月、エントランスや貸室内をリニューアルし「和」を感じさせるデザイン性の高いオフィスへ生まれ変わりました!
1フロア1テナント利用のオフィスには、フロア専用男女別トイレと給湯室、予め会議室を設置いたします。
天井高2.8メートルと開放感のあるオフィス、OAフロアや個別空調など設備面も充実しています。
周辺は飲食店の多いエリア、新大橋通りの1本裏道の鈴らん通りのすぐそばにあります。