推奨利用人数
30人~39人
【成約済み】SUDO BLD 2階
- 所在地:東京都港区芝浦3丁目11番13号
- 交通:JR山手線「田町」駅徒歩5分
- 交通2:都営三田線「三田」駅徒歩8分
- 交通3:ゆりかもめ「芝浦ふ頭」駅徒歩11分
| 賃料:相談 (税別) | 管理費:相談 (税別) |
| 敷金:10ヶ月- | 礼金:0ヶ月 |
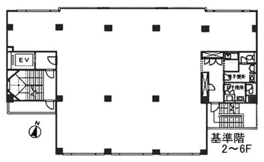
| 面積:237.65m² | 所在階:地上2階 |
| 間取り:事務所 | 築年月:1989年04月 |
| 賃料/管理費 | 相談 (税別)/相談 (税別) | フリーレント | 0ヶ月 |
|---|---|---|---|
| 敷金/礼金 | 10ヶ月/0ヶ月 | 内見・入居 | |
| 間取り | 事務所 | 面積 | 237.65m² |
| 所在階 | 地上2階 | 最大スペース | |
| 住所 | 東京都港区芝浦3丁目11番13号 | 最寄駅 | JR山手線「田町」駅徒歩5分 都営三田線「三田」駅徒歩8分 ゆりかもめ「芝浦ふ頭」駅徒歩11分 |
| その他交通 | 築年月 | 1989年04月 | |
| 方角 | 構造 | 鉄筋コンクリート造(RC造) 7階建 | |
| 契約期間 | その他 | 契約形態 | |
| 償却 | 0ヶ月 | 設備 | エレベーター , OAフロア |
| 更新料 | 0ヶ月 | 更新日 | 2025年09月11日 |
| 備考 | |||
| その他費用 | ・駐車場:月額40,000円(税別) | ||



お問い合わせの際は、「部屋No.47561」とお伝えください。





























南北両側に窓があり明るい室内です
個別空調、機械警備、共用部に男女別トイレ
エントランスはカードリーダー操作により24時間入退館可能です