推奨利用人数
15人~19人
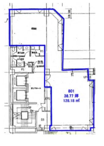
【成約済み】東麻布一丁目ビル 801号室
- 所在地:東京都港区東麻布1丁目9番15号
- 交通:都営大江戸線「赤羽橋」駅徒歩4分
- 交通2:東京メトロ日比谷線「神谷町」駅徒歩7分
- 交通3:都営三田線「芝公園」駅徒歩10分
| 賃料:相談 (税別) | 管理費:相談 (税別) |
| 敷金:12ヶ月- | 礼金:0ヶ月 |
| 面積:128.16m² | 所在階:地上8階 |
| 間取り:事務所 | 築年月:1989年10月 |
| 賃料/管理費 | 相談 (税別)/相談 (税別) | フリーレント | 0ヶ月 |
|---|---|---|---|
| 敷金/礼金 | 12ヶ月/0ヶ月 | 内見・入居 | |
| 間取り | 事務所 | 面積 | 128.16m² |
| 所在階 | 地上8階 | 最大スペース | |
| 住所 | 東京都港区東麻布1丁目9番15号 | 最寄駅 | 都営大江戸線「赤羽橋」駅徒歩4分 東京メトロ日比谷線「神谷町」駅徒歩7分 都営三田線「芝公園」駅徒歩10分 |
| その他交通 | 築年月 | 1989年10月 | |
| 方角 | 構造 | 鉄骨鉄筋コンクリート造(SRC造) 8階建 | |
| 契約期間 | その他 | 契約形態 | |
| 償却 | 0ヶ月 | 設備 | エレベーター |
| 更新料 | 0ヶ月 | 更新日 | 2025年09月11日 |
| 備考 | |||



お問い合わせの際は、「部屋No.47591」とお伝えください。





























複数路線利用可能で交通アクセス良好
1階はスーパーマーケット、近隣にもコンビニがあり便利。
駐車場、光ファイバー、男女別トイレなど利便性の高い新耐震基準ビルです。