推奨利用人数
15人~19人
【成約済み】依田忠ビル 8階
- 所在地:東京都中央区京橋1丁目14番9号
- 交通:東京メトロ銀座線「京橋」駅徒歩3分
- 交通2:都営浅草線「宝町」駅徒歩3分
- 交通3:JR山手線「東京」駅徒歩8分
| 賃料:-- (税別) | 管理費:105,000円 (税別) |
| 敷金:8ヶ月- | 礼金:2ヶ月 |
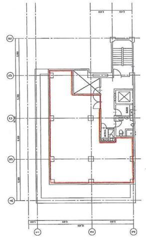
| 面積:115.69m² | 所在階:地上8階 |
| 間取り:事務所 | 築年月:1965年07月 |
| 賃料/管理費 | -- (税別)/105,000円 (税別) | フリーレント | 0ヶ月 |
|---|---|---|---|
| 敷金/礼金 | 8ヶ月/2ヶ月 | 内見・入居 | 内見可 |
| 間取り | 事務所 | 面積 | 115.69m² |
| 所在階 | 地上8階 | 最大スペース | |
| 住所 | 東京都中央区京橋1丁目14番9号 | 最寄駅 | 東京メトロ銀座線「京橋」駅徒歩3分 都営浅草線「宝町」駅徒歩3分 JR山手線「東京」駅徒歩8分 |
| その他交通 | 築年月 | 1965年07月 | |
| 方角 | 構造 | 鉄骨鉄筋コンクリート造(SRC造) 9階建 | |
| 契約期間 | 2年間 | 契約形態 | 普通借家 |
| 償却 | 1ヶ月 | 設備 | エレベーター |
| 更新料 | 1ヶ月 | 更新日 | 2025年09月11日 |
| 備考 | |||



お問い合わせの際は、「部屋No.47611」とお伝えください。





























1965年竣工。外壁は大理石貼りのシンプルなデザインのビルです。
基準となるフロアは1フロア約53坪。EV1基、1フロア1テナント利用のオフィスです。
各階に男女別トイレを設けていますので使い勝手も良好。セキュリティは機械警備を完備しています。
最寄りの京橋駅からは徒歩3分の好立地!複数の駅が利用できるアクセス便利なオフィスです。