推奨利用人数
40人以上
【成約済み】TSUKIJI GRANDE【事務所】 5階
- 所在地:東京都中央区築地3丁目7番1号
- 交通:東京メトロ日比谷線「築地」駅徒歩2分
- 交通2:東京メトロ有楽町線「新富町」駅徒歩4分
- 交通3:都営浅草線「東銀座」駅徒歩8分
| 賃料:-- (税別) | 管理費:0円 (税別) |
| 敷金:相談- | 礼金:0ヶ月 |
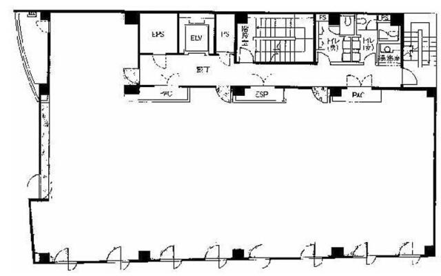
| 面積:281.32m² | 所在階:地上5階 |
| 間取り:事務所 | 築年月:1990年12月 |
| 賃料/管理費 | -- (税別)/0円 (税別) | フリーレント | 0ヶ月 |
|---|---|---|---|
| 敷金/礼金 | 相談/0ヶ月 | 内見・入居 | 内見可 |
| 間取り | 事務所 | 面積 | 281.32m² |
| 所在階 | 地上5階 | 最大スペース | |
| 住所 | 東京都中央区築地3丁目7番1号 | 最寄駅 | 東京メトロ日比谷線「築地」駅徒歩2分 東京メトロ有楽町線「新富町」駅徒歩4分 都営浅草線「東銀座」駅徒歩8分 |
| その他交通 | 都営大江戸線「築地市場」駅9分 | 築年月 | 1990年12月 |
| 方角 | 構造 | 鉄骨鉄筋コンクリート造(SRC造) 6階建 | |
| 契約期間 | 2年間 | 契約形態 | 普通借家 |
| 償却 | 0ヶ月 | 設備 | エレベーター , OAフロア |
| 更新料 | 0ヶ月 | 更新日 | 2025年09月11日 |
| 備考 | |||



お問い合わせの際は、「部屋No.47661」とお伝えください。





























1990年竣工、グレーのタイル張りのオフィスです。新耐震基準をクリアしています。
2017年6月にエントランス・共用部・貸室内を大規模リニューアルいたしました。
1フロア1テナント利用のオフィスには、男女別トイレと給湯室、受付と会議室スペースが予め設けられておりますので、内装費用のご負担を削減し、すぐに業務が開始できます。
セキュリティは機械警備を導入。24時間いつでも安心してご利用いただけます。
築地駅周辺は、飲食店や金融機関などが多く利便性も良好です。新富町までも徒歩4分で利用可能でアクセス良好なオフィスです。