推奨利用人数
5人~6人
【成約済み】亀島ビル 201号室
- 所在地:東京都中央区日本橋茅場町3丁目13番2号
- 交通:東京メトロ日比谷線「八丁堀」駅徒歩2分
- 交通2:東京メトロ東西線「茅場町」駅徒歩3分
- 交通3:東京メトロ銀座線「日本橋」駅徒歩11分
| 賃料:-- (税別) | 管理費:10,000円 (税別) |
| 敷金:3ヶ月- | 礼金:0ヶ月 |
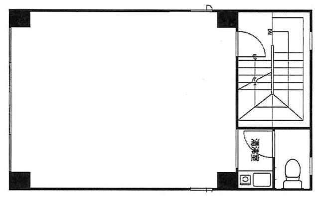
| 面積:34.05m² | 所在階:地上2階 |
| 間取り:事務所 | 築年月:1984年06月 |
| 賃料/管理費 | -- (税別)/10,000円 (税別) | フリーレント | 0ヶ月 |
|---|---|---|---|
| 敷金/礼金 | 3ヶ月/0ヶ月 | 内見・入居 | 内見可 |
| 間取り | 事務所 | 面積 | 34.05m² |
| 所在階 | 地上2階 | 最大スペース | |
| 住所 | 東京都中央区日本橋茅場町3丁目13番2号 | 最寄駅 | 東京メトロ日比谷線「八丁堀」駅徒歩2分 東京メトロ東西線「茅場町」駅徒歩3分 東京メトロ銀座線「日本橋」駅徒歩11分 |
| その他交通 | 築年月 | 1984年06月 | |
| 方角 | 構造 | 鉄筋コンクリート造(RC造) 5階建 | |
| 契約期間 | 2年間 | 契約形態 | 定期借家 |
| 償却 | 1ヶ月 | 設備 | |
| 更新料 | 1ヶ月 | 更新日 | 2025年09月11日 |
| 備考 | |||



お問い合わせの際は、「部屋No.47774」とお伝えください。





























亀島ビルは1984年竣工のオフィスビル、白い外壁と石造りのエントランスの外観の建物です。新耐震基準をクリアしています。
1フロア1テナント利用のコンパクトなオフィスです。エントランスは常時オートロック作動し、24時間いつでもご利用可能です。EVはございませんので、階段をご利用いただきます。
最寄の八丁堀駅は徒歩2分、茅場町駅は徒歩3分で利用可能、ターミナル駅、東京駅までのアクセスが良いです。