推奨利用人数
15人~19人
【成約済み】新東京ビル(丸の内) 3階
- 所在地:東京都千代田区丸の内3丁目3番1号
- 交通:JR山手線「東京」駅徒歩7分
- 交通2:東京メトロ有楽町線「有楽町」駅徒歩3分
- 交通3:東京メトロ千代田線「二重橋前」駅徒歩7分
| 賃料:相談 (税別) | 管理費:相談 (税別) |
| 敷金:相談- | 礼金:0ヶ月 |
| 面積:128.56m² | 所在階:地上3階 |
| 間取り:事務所 | 築年月:1963年06月 |
| 賃料/管理費 | 相談 (税別)/相談 (税別) | フリーレント | 0ヶ月 |
|---|---|---|---|
| 敷金/礼金 | 相談/0ヶ月 | 内見・入居 | 内見可 |
| 間取り | 事務所 | 面積 | 128.56m² |
| 所在階 | 地上3階 | 最大スペース | |
| 住所 | 東京都千代田区丸の内3丁目3番1号 | 最寄駅 | JR山手線「東京」駅徒歩7分 東京メトロ有楽町線「有楽町」駅徒歩3分 東京メトロ千代田線「二重橋前」駅徒歩7分 |
| その他交通 | 築年月 | 1963年06月 | |
| 方角 | 構造 | 鉄骨鉄筋コンクリート造(SRC造) 9階建 | |
| 契約期間 | 応相談 | 契約形態 | 普通借家 |
| 償却 | 相談 | 設備 | エレベーター , OAフロア |
| 更新料 | 更新日 | 2025年09月11日 | |
| 備考 | ・開閉館時間(平日 7:00-23:30・土曜 7:00-22:00・日祝 10:00-22:00) | ||



お問い合わせの際は、「部屋No.47777」とお伝えください。





























東京国際フォーラム隣接、銀座エリアへもすぐというアクセスの良さを誇ります。
ブランドショップが立ち並ぶ「丸の内仲通り」に面し、風格ある1階エントランスでお出迎えいたします。
地下1階・1階には多数の店舗、そして貸会議室も備え、ワーカーサポート機能も充実!
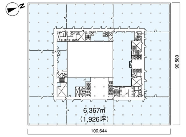
1フロア約1,900坪という大規模ビルの中でも様々な面積のオフィスをご用意しております。
EVは乗用16基と貨物用2基、天井高2,650mmの貸室にはOAフロアを採用しています。
共用部にはリフレッシュコーナー、男女別トイレ、給湯室があり気持ちよくご利用いただけます。
24時間有人管理なので、セキュリティ面も安心です。
最寄の有楽町駅のほか、東京駅、二重橋前駅、日比谷駅、銀座駅等徒歩10分以内で利用可能!
周辺には商業施設も多く利便性も良好です。