推奨利用人数
15人~19人
【成約済み】東京建物室町ビル 3階
- 所在地:東京都中央区日本橋室町4丁目3番18号
- 交通:東京メトロ銀座線「三越前」駅徒歩4分
- 交通2:東京メトロ日比谷線「小伝馬町」駅徒歩4分
- 交通3:JR山手線「神田」駅徒歩8分
| 賃料:相談 (税別) | 管理費:相談 (税別) |
| 敷金:相談- | 礼金:0ヶ月 |
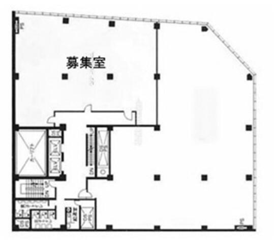
| 面積:104.66m² | 所在階:地上3階 |
| 間取り:事務所 | 築年月:1966年03月 |
| 賃料/管理費 | 相談 (税別)/相談 (税別) | フリーレント | 0ヶ月 |
|---|---|---|---|
| 敷金/礼金 | 相談/0ヶ月 | 内見・入居 | 相談 |
| 間取り | 事務所 | 面積 | 104.66m² |
| 所在階 | 地上3階 | 最大スペース | |
| 住所 | 東京都中央区日本橋室町4丁目3番18号 | 最寄駅 | 東京メトロ銀座線「三越前」駅徒歩4分 東京メトロ日比谷線「小伝馬町」駅徒歩4分 JR山手線「神田」駅徒歩8分 |
| その他交通 | JR総武本線「新日本橋」駅1分 | 築年月 | 1966年03月 |
| 方角 | 構造 | 鉄骨鉄筋コンクリート造(SRC造) 9階建 | |
| 契約期間 | その他 | 契約形態 | 定期借家 |
| 償却 | 0ヶ月 | 設備 | エレベーター , OAフロア |
| 更新料 | 更新日 | 2025年09月11日 | |
| 備考 | ・3階:定期借家契約 2028年12月31日迄 | ||



お問い合わせの際は、「部屋No.47842」とお伝えください。





























東京建物室町ビルは1966年竣工の歴史のある建物。
2001年に全面リニューアルを施し、ガラス張りの美しいオフィスへ一新いたしました。新耐震基準をクリアしていますので安心です。
日本橋中央通りと江戸通りが交差する「室町3丁目交差点」角地に立地しており、視認性も良好です。
建物には、EV2基、自走式の駐車場設備完備。
オフィスフロアは、共用部に男女別トイレと給湯室が設置されており、貸室内は効率よくレイアウトすることが可能です。
建物には、銀行やコンビニが入店しておりますので便利です!